
226 5TH AVE N #603
2, 2, 1,378ft²
MLS#: TB8433378
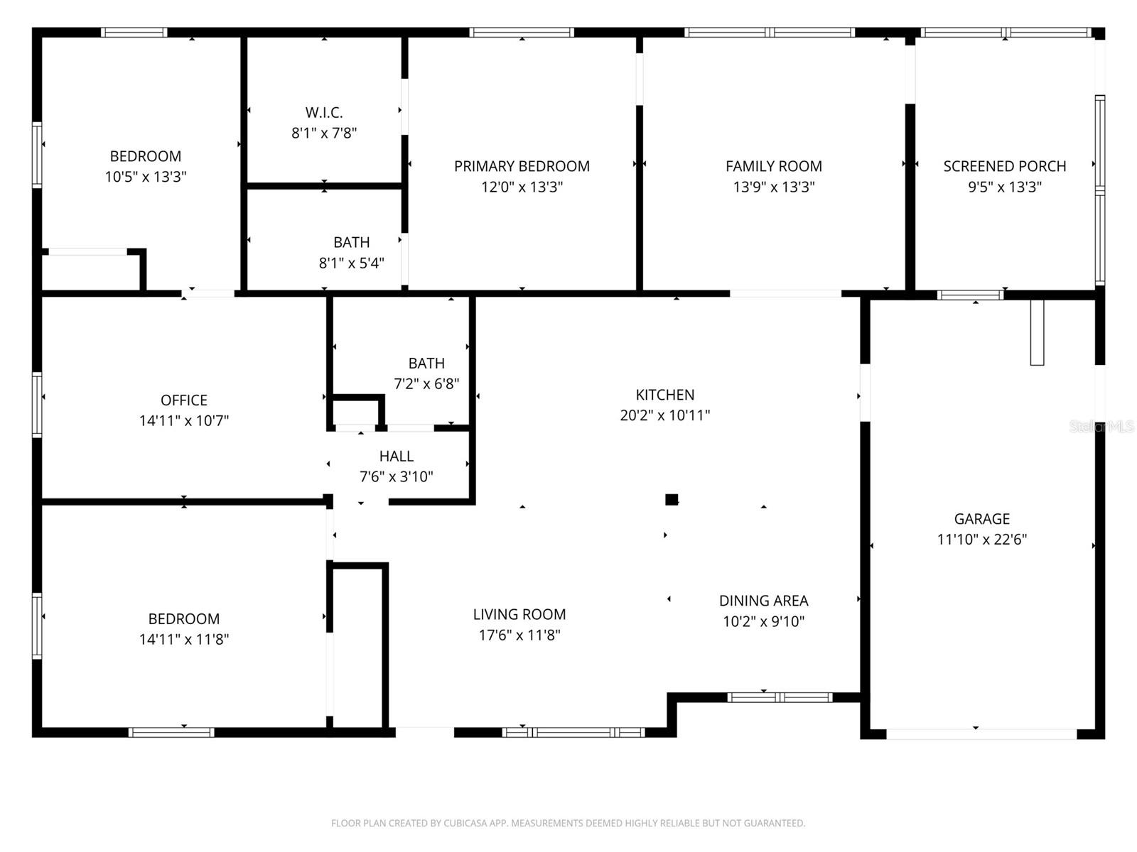
Welcome to this 3 bed, 2 bath home with multiple living spaces and beautiful newly renovated finishes. The kitchen is large in size and has plenty of space for cooking and entertaining. The home has modern wood cabinetry topped with a stunning Travertine countertop and stainless steel appliances. The kitchen island has bar stool room and plenty of space for extra storage. Adjacent to the kitchen is the dining space that flows into the living room with a large window overlooking the front yard. Toward the back of the home, there is a second living space that can pose as a family room and it has access to the fenced-in backyard and screened in lanai through a glass door. The home has a split bedroom floor plan with the primary suite on one side of the home and the guest bedrooms, bathroom, and additional living/flex space that can be used a home office, den, or playroom on the other. The primary suite has a modern style walk-in shower with glass panel, custom vanity with Travertine counter, and an LED lit mirror. The suite also has a massive walk-in closet and large window overlooking the backyard. The second bathroom has been remodeled tastefully with modern tile finishes and a new vanity. The home also has new luxury vinyl plank throughout and impact windows. Located in the popular neighborhood of Disston Heights, this home is central to all that St. Pete has to offer. This is a quiet neighborhood with tree lined streets providing lots of opportunities for bike riding, walking, and jogging. The home is just a short distance away from popular parks where there are multiple sports courts, ball fields, playgrounds, swimming pools and walking paths. You are also just a short drive away from Downtown St. Pete and popular Central Ave filled with local shops and restaurants. The popular white sand beaches of the Gulf of Mexico are nearby and the Tampa International Airport is only 30 minutes away making travel and commuting easy.
Driving directions : Turn onto 23rd Ave; Home on the left
Rooms | Dimension | Description |
---|---|---|
Primary Bedroom | First level | |
Living Room | First level | |
Family Room | First level | |
Office | First level | |
Kitchen | First level |
2, 2, 1,378ft²
MLS#: TB8433378
3, 2, 1,274ft²
MLS#: TB8420976
2, 1, 1,656ft²
MLS#: TB8433746
2, 2, 1,069ft²
MLS#: TB8414909