English / Українська / Español /

Julia Vakulenko - Broker -

A4670229 A4670229 A4670229 A4670229 A4670229 A4670229 A4670229 A4670229 A4670229 A4670229 A4670229 A4670229 A4670229 A4670229 A4670229 A4670229 A4670229
Loading map ...
Loading map ...

611 PALM AVE N, ST PETERSBURG, 33703



Property highlights

  • MLS#: A4670229
  • 7,270.00 lot size Sq.Ft.
  • Year built: 1961
  • Carport spaces: 1

Property Overview

Welcome to this charming home offering comfortable living space plus an additional room at the back—adding nearly 300 sq. ft. of bonus space and a 1% lender credit at closing. Featuring a newer A/C unit (just 1 year old) and a roof replaced only 6 years ago, this home combines peace of mind with inviting style. While the home is dated and could use some TLC, it presents an incredible opportunity for first-time homebuyers looking to build equity or investors seeking a promising fix-and-flip project. With a little vision and creativity, this property has great potential to shine.

Step outside to your own private tropical retreat—an expansive wooden deck surrounded by lush greenery and mature palm trees, perfect for relaxing or entertaining. Enjoy dining under the shade of an umbrella, unwind in the fresh air, or host gatherings in this inviting outdoor space. A storage shed adds convenience, while the fully fenced yard provides privacy and tranquility.

This home offers the perfect mix of potential, comfort, and location. Don’t miss your chance to see this hidden gem and make it your own!

Driving directions : From Highway 54th Ave N, turn onto Palm Ave N, then make a turn onto Cedarwood St N. The property will be on the left side of the road.

Property Features

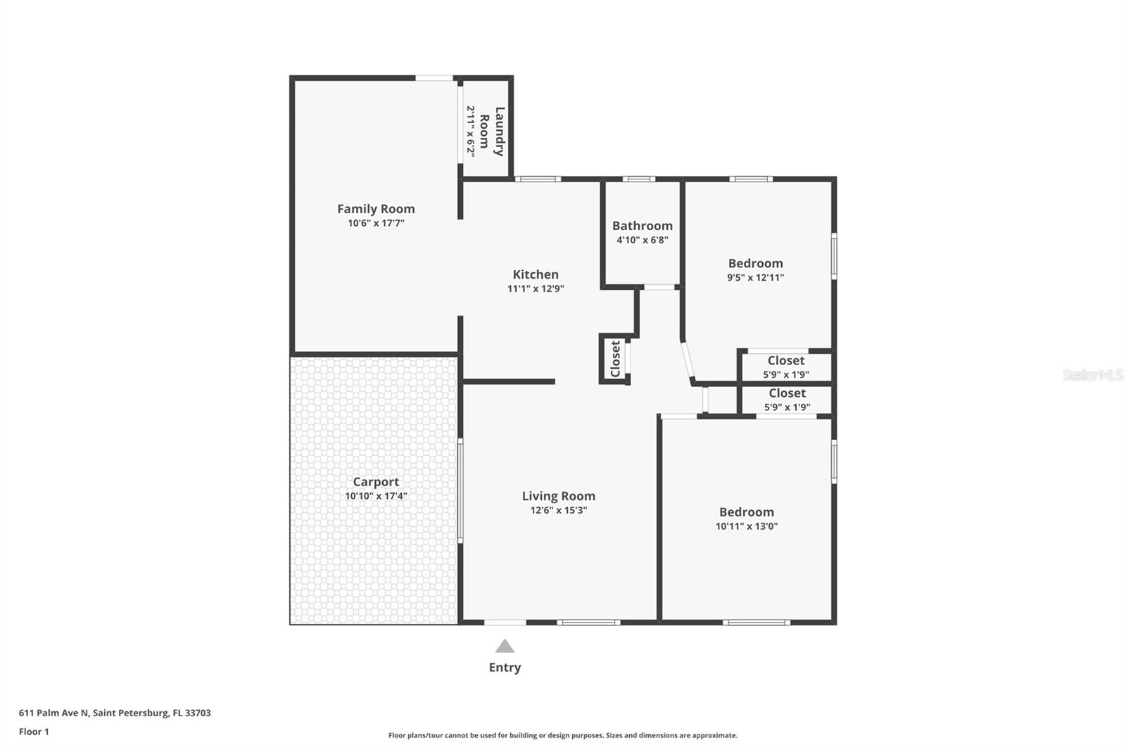
Rooms Dimension Description
Bedroom 2 9.5x12.11 First level
Family Room 10.6x17.7 First level
Kitchen 11.1x12.9 First level
Living Room 12.6x15.3 First level
Primary Bedroom 10.11x13 First level

Interior Features

  • Ninguno

Appliances

  • Dryer
  • Electric Water Heater
  • Range
  • Refrigerator
  • Washer

Heating

  • Central

Laundry features

  • Laundry Room

Air Conditioning

  • Central Air

Floor Covering

  • Carpet
  • Ceramic Tile
  • Wood

Utilities

  • Public

Exterior features

  • Other
  • Rain Gutters

Parking features

  • Boat
  • None

Patio and porch features

  • Deck
  • Patio
  • Porch

Community Features

  • None

Construction Materials

  • Block

Other Structures

  • Shed(s)

Road Surface Type

  • Concrete

Roof

  • Shingle

Foundation

  • Concrete Perimeter

Vegetation

  • Mature Landscaping
  • Oak Trees
  • Trees/Landscaped

School Information


Listing information courtesy of EXP REALTY, LLC

All listing information is deemed reliable but not guaranteed and should be independently verified through personal inspection by appropriate professionals. Listings displayed on this website may be subject to prior sale or removal from sale; availability of any listing should always be independently verified.
Listing information is provided for consumer personal, non-commercial use, solely to identify potential properties for potential purchase; all other use is strictly prohibited and may violate relevant federal and state law.
Listing data comes from My Florida Regional MLS.