English / Українська / Español /

Julia Vakulenko - Broker -

L4960208 L4960208
Loading map ...
Loading map ...

9024 WATERBIRD WAY, BROOKSVILLE, 34613



Property highlights

  • MLS#: L4960208
  • 14,111.00 lot size Sq.Ft.
  • Year built: 2025
  • Parking spaces: 1
  • Listed: 03/12/2026
  • Taxes: $352.58

Property Overview

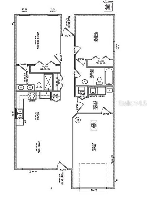
Under Construction. This brand-new 3 bedroom, 2 bath home offers 1,680 sq ft of modern living with an open great room, stylish kitchen with granite counters and stainless steel appliances, and a split-bedroom layout for privacy. The primary suite features a spacious layout and ensuite bath, while two additional bedrooms sit near the second full bath. Enjoy a covered entry, rear porch, and a 1-car garage on a generous lot with no HOA or CDD. Located near Cortez Blvd with quick access to shopping, dining, parks, and the Suncoast Parkway for an easy Tampa commute.

Driving directions : Take the Suncoast Parkway (FL-589) north toward Brooksville. Exit at FL-50/Cortez Blvd and head west. Turn right onto Nightwalker Road, then turn right onto Waterbird Way. The home will be on your left.

Property Features

Rooms Dimension Description
Living Room First level , Luxury Vinyl
Kitchen First level , Luxury Vinyl
Primary Bedroom First level , Luxury Vinyl

Interior Features

  • Ceiling Fans(s)

Appliances

  • Dishwasher
  • Microwave
  • Range
  • Refrigerator

Heating

  • Central

Laundry features

  • Laundry Room

Air Conditioning

  • Central Air

Floor Covering

  • Luxury Vinyl

Utilities

  • Public

Exterior features

  • None

Construction Materials

  • HardiPlank Type

Road Surface Type

  • Dirt
  • Paved

Property Condition

  • Under Construction

Roof

  • Shingle

Foundation

  • Block
  • Slab

Listing information courtesy of DJ DELGADO MANAGEMENT GROUP

All listing information is deemed reliable but not guaranteed and should be independently verified through personal inspection by appropriate professionals. Listings displayed on this website may be subject to prior sale or removal from sale; availability of any listing should always be independently verified.
Listing information is provided for consumer personal, non-commercial use, solely to identify potential properties for potential purchase; all other use is strictly prohibited and may violate relevant federal and state law.
Listing data comes from My Florida Regional MLS.