English / Українська / Español /

Julia Vakulenko - Broker -

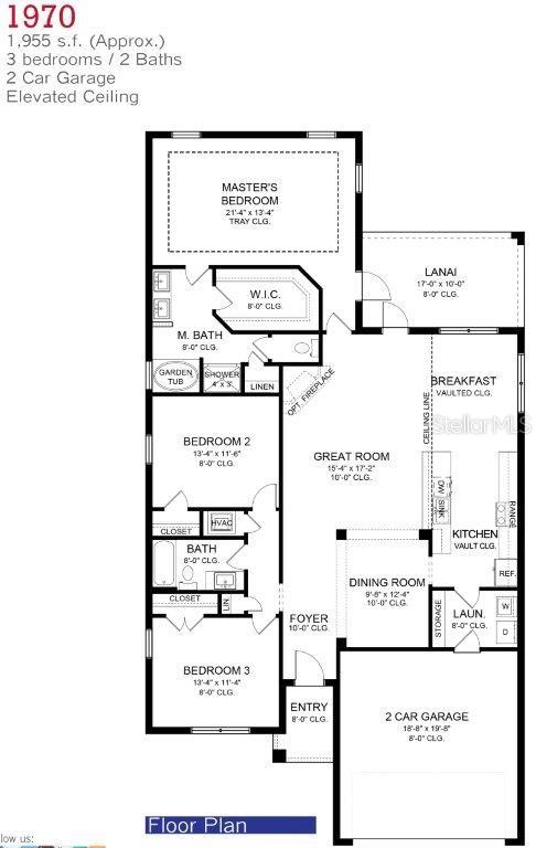
1970 C Rendering 1970 Floor Plan
Loading map ...
Loading map ...

12412 LANGLEY DR #Lot 78, SPRING HILL, 34609



Property highlights

  • MLS#: OM722318
  • 6,000.00 lot size Sq.Ft.
  • Year built: 2026
  • Parking spaces: 2
  • Listed: 04/07/2026
  • Taxes: $368.00
  • HOA fees (monthly): $65.44
  • Average Monthly Fees (not including CDD, if any): $65.44

Property Overview

Under Construction. 3/2/2 1970 sqft Features include: Elevation premium, 5' Tile shower w/light ILO composite shower unit in master bath, Wood look tile in all areas except bedrooms, Shaker cabinet upgrade, Granite counter tops, Rear door mini blinds x2, Stainless steel upgrade (microwave, stove, dishwasher), Add crown molding to tray ceiling in master bedroom. Matte Black Finishes
Estimated completion: June/July '26
THIS HOME QUALIFIES FOR A LOW INTEREST RATE BUYDOWN WHEN BUYER CLOSES WITH A SELLER APPROVED LENDER AND SIGNS A CONTRACT BY 5PM ON 5/10/2026. TAEXX pest control system built in home. Builder warranty! Builder helps with closing costs when Buyer pays cash or closes with Seller approved lender. Prices /Promotions are subject to change without notice

Driving directions : From Mariner Blvd, East on Elgin, Right on Landover, Left on Pine Bluff St, Left on Sutherland St, Right on Langley

Property Features

Rooms Dimension Description
Living Room 15.4x17.2 First level , Ceramic Tile
Primary Bedroom 21.4x13.4 First level , Carpet
Kitchen 13.9x18 First level , Ceramic Tile , Pantry

Interior Features

  • Crown Molding
  • High Ceilings
  • In Wall Pest System
  • Walk-In Closet(s)

Appliances

  • Dishwasher
  • Disposal
  • Electric Water Heater
  • Microwave
  • Range

Heating

  • Central
  • Electric
  • Heat Pump

Laundry features

  • Electric Dryer Hookup
  • Inside
  • Laundry Room
  • Washer Hookup

Air Conditioning

  • Central Air

Floor Covering

  • Carpet
  • Ceramic Tile

Utilities

  • Cable Available
  • Electricity Available
  • Electricity Connected
  • Sewer Available
  • Sewer Connected
  • Underground Utilities
  • Water Connected

Exterior features

  • Lighting
  • Private Mailbox
  • Sidewalk

Community Features

  • Street Lights

Construction Materials

  • Block
  • Concrete
  • Stucco

Road Surface Type

  • Asphalt
  • Paved

Property Condition

  • Under Construction

Roof

  • Shingle

Foundation

  • Slab

Listing information courtesy of ADAMS HOMES REALTY INC

All listing information is deemed reliable but not guaranteed and should be independently verified through personal inspection by appropriate professionals. Listings displayed on this website may be subject to prior sale or removal from sale; availability of any listing should always be independently verified.
Listing information is provided for consumer personal, non-commercial use, solely to identify potential properties for potential purchase; all other use is strictly prohibited and may violate relevant federal and state law.
Listing data comes from My Florida Regional MLS.