
6210 92ND PL N #3404
2, 2, 1,245ft²
MLS#: TB8432534
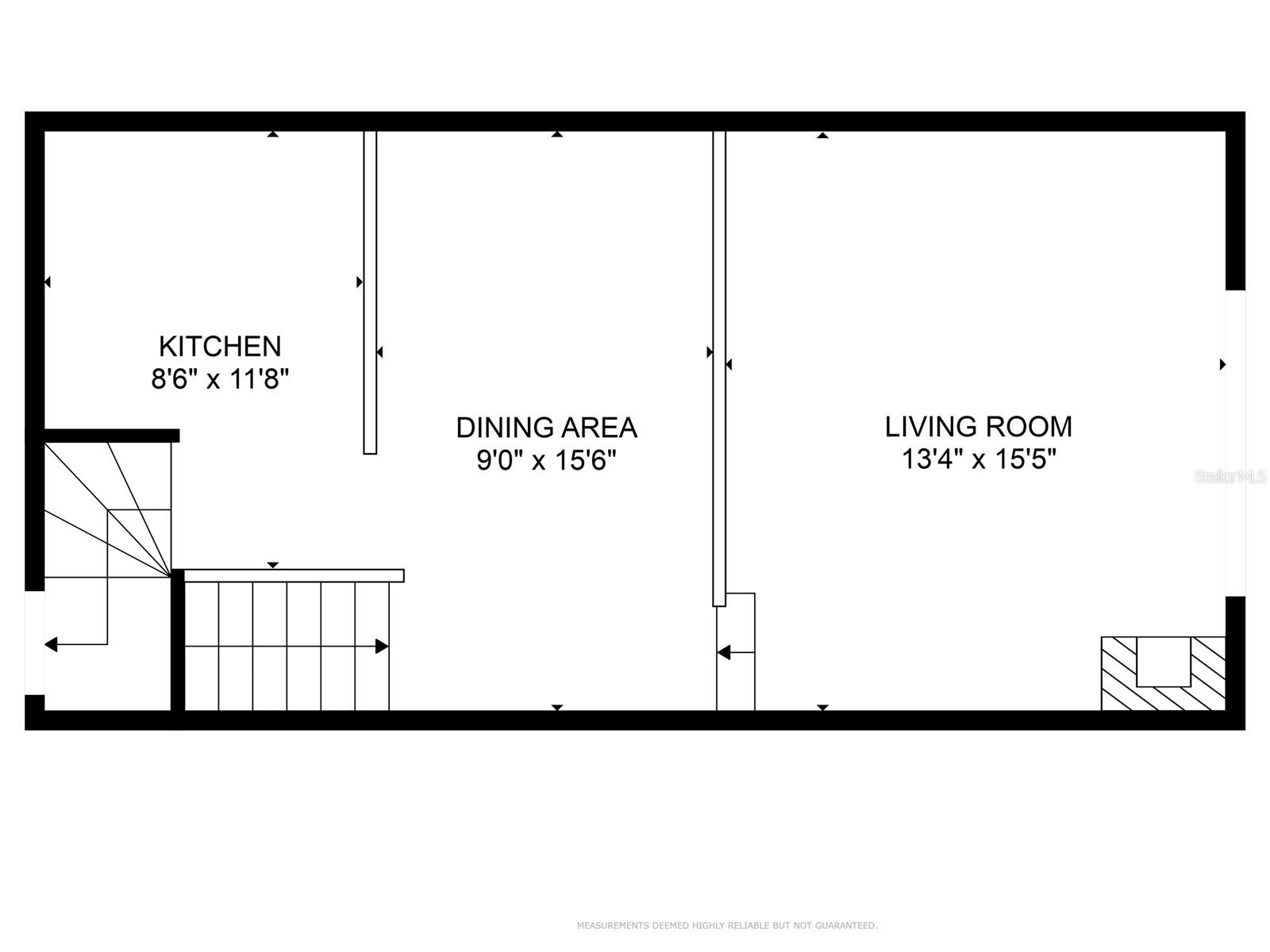
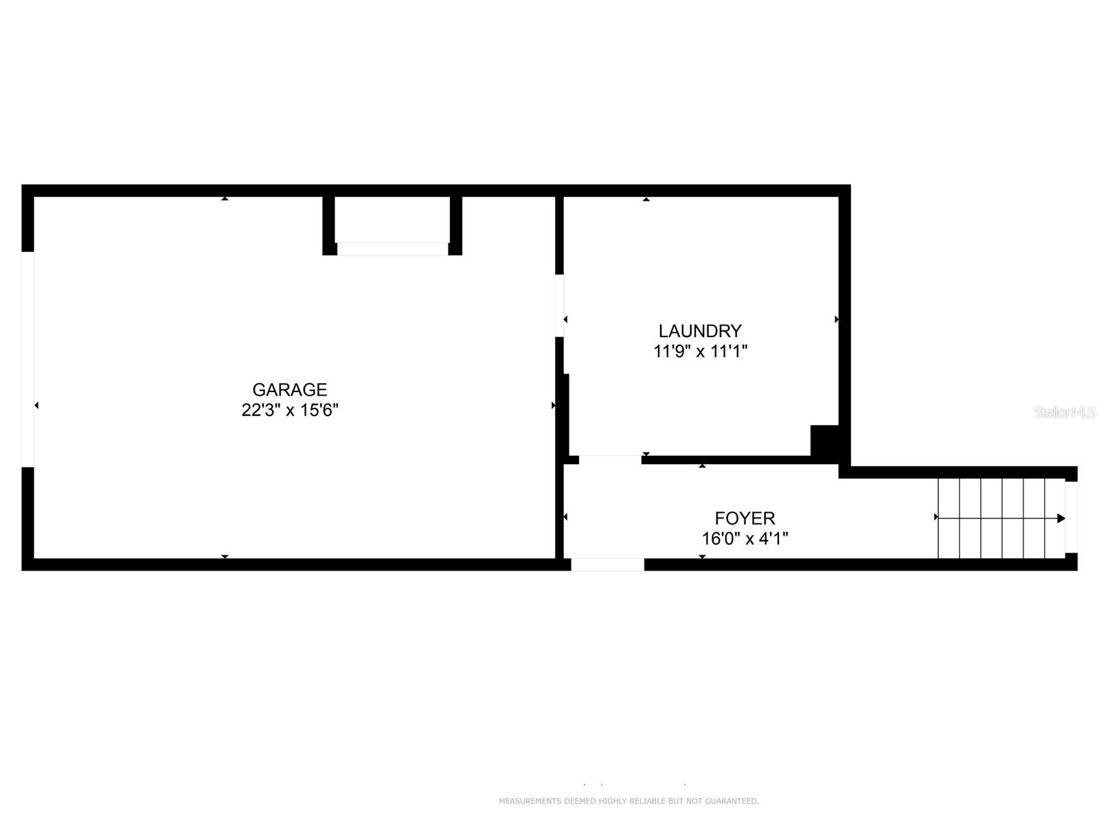
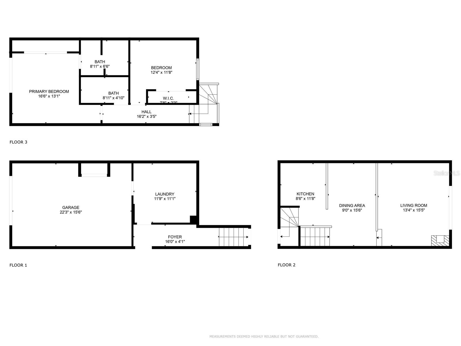
One or more photo(s) has been virtually staged. Welcome to this beautifully maintained 2-bedroom, 2-bathroom end-unit townhouse offering maintenance-free living—and it's not located in a flood zone! The only end unit, 2-bedroom, 2 full bathroom, townhouse available in the community, with no neighbors on one side! This spacious tri-level home features an oversized 1-car garage with abundant storage and a driveway that accommodates multiple vehicles. On the first level, you’ll find a versatile bonus room—perfect for a home office or workout space—along with a washer and dryer and additional storage. The second floor boasts stylish, vinyl plank flooring throughout. The kitchen is equipped with a newer range and refrigerator, butcher block countertops, and a breakfast bar that opens into the dining area. The sunken living room features vaulted ceilings with skylights that fill the space with natural light, a wood-burning fireplace, and access to a screened porch via stacking sliding doors—ideal for relaxing outdoors. Both bedrooms and bathrooms are located on the third floor. The primary suite includes built-in shelving in the closet, a private balcony and an ensuite bathroom with a new sink and vanity. The HOA fee of $648 a month (not $803 that it stated on some websites) covers the heated pool, exterior maintenance, reserves fund, roof, grounds maintenance, sewer, water, trash, cable, internet, and private road—truly low-maintenance living! Seller will pay part, or all, of the remaining special roof assessment, depending on an offer. Work has begun on putting new, exterior siding on the buildings. The community is directly across the street from Forbes Recreation Center and Helen Howarth Community Park, featuring a dog park, playgrounds, picnic pavilions, ball fields, and walking/horse trails. It’s also conveniently located near I-275, restaurants & shopping; two international airports; award-winning Gulf beaches; and the vibrant downtowns of St. Petersburg & Tampa. Don’t miss your chance to own this turnkey townhouse in a prime location with everything you need right at your doorstep!
Driving directions : 66th Street North to 94th Avenue. Turn east on 94th Avenue then right onto 92nd Place into the Lake Forest entrance. Follow the road around a right bend turn. Unit is on the right side right by the semicircle road.
Rooms | Dimension | Description |
---|---|---|
Living Room | 14x15 | Second level , Luxury Vinyl |
Dining Room | 9x13 | Second level , Luxury Vinyl |
Kitchen | 9x9 | Second level , Luxury Vinyl |
Primary Bedroom | 13x13 | Third level , Laminate |
Bedroom 1 | 10x12 | Third level , Laminate |
2, 2, 1,245ft²
MLS#: TB8432534
2, 2, 1,111ft²
MLS#: TB8431472
2, 2, 1,245ft²
MLS#: TB8396255
2, 1, 1,190ft²
MLS#: TB8352888