
1962 FREEDOM DR
4, 3, 2,318ft²
MLS#: TB8432567
Charming Coastal Retreat – Walk to Downtown Dunedin! Welcome to 1125 Commodore Street, a rare find between Clearwater and Dunedin. This elevated 2-bed, 1-bath home sits on a spacious 62x142 lot outside the flood zone that remained secure through hurricanes Helene and Milton. Inside, enjoy hardwood floors, a remodeled bath and upgraded A/C. The 960 sq ft home includes a 270 sq ft screened porch, 264 sq ft garage, 216 sq ft carport, and a wired shed - perfect for storage or a workshop. Just 1.5 blocks from St. Johns Sound and a short walk to the Pinellas Trail and Downtown Dunedin. Only 2 miles from Downtown Clearwater with nearby amenities. Whether you’re ready to move in or build new, this property offers lifestyle and investment potential. Listed at $550,000—reflecting its prime location, lot size, and upgrades
Driving directions : From the intersection of Edgewater Drive and Commodore Street, drive approximately 0.2 miles east to the address. There is a short right turn followed by a short left turn mid way there.
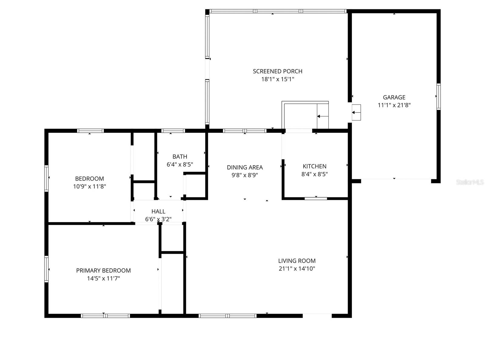
Rooms | Dimension | Description |
---|---|---|
Living Room | 15x21 | First level , Wood , Ceiling Fan(s) |
Dining Room | 9x10 | First level , Wood |
Kitchen | 8x8 | First level , Wood , Exhaust Fan |
Primary Bedroom | 12x14 | First level , Wood , Ceiling Fan(s) |
Bathroom 1 | 6x8 | First level , Wood , Built-In Shower Bench , Shower No Tub |
Bedroom 2 | 11x12 | First level , Wood , Ceiling Fan(s) |
Balcony/Porch/Lanai | 15x18 | First level , Concrete |
4, 3, 2,318ft²
MLS#: TB8432567
3, 2, 1,504ft²
MLS#: TB8427554
3, 2, 2,112ft²
MLS#: TB8426932
3, 3, 1,856ft²
MLS#: TB8431759