
7309 TANGLE BEND DR
3, 2, 1,564ft²
MLS#: TB8422795
Move-In Ready and Packed with Upgrades! Transferrable Structural Home Warranty through April 2028.
This beautifully maintained 4-bedroom, 2-bath home, built in 2018, is ready for its next owner! Step inside to discover an open-concept kitchen featuring stainless steel appliances, a breakfast bar, and plenty of space for cooking and entertaining. The split floor plan ensures privacy between the primary suite and guest bedrooms, ideal for families, guests, or those who work from home.
Enjoy low-maintenance living with stylish 18 inch tile flooring throughout and a 2-car garage equipped with a professionally installed EV charger wiring.
Located in a well-kept gated community, this home offers the perfect balance of privacy and convenience just minutes from I-75, downtown Tampa, and within 30 minutes of Tampa International Airport.
Driving directions : Input property address into GPS, this will lead you to home.
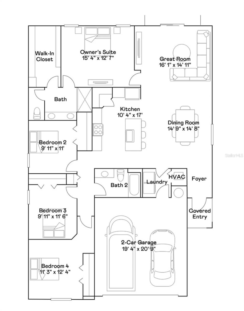
Rooms | Dimension | Description |
---|---|---|
Primary Bedroom | 15.4x12.7 | First level |
Bedroom 2 | 9.11x11 | First level |
Bedroom 3 | 9.11x11.6 | First level |
Bedroom 4 | 11.3x12.4 | First level |
Dining Room | 14.9x14.8 | First level |
Kitchen | 10.4x17 | First level |
Living Room | 16.1x14.11 | First level |
Primary Bathroom | First level | |
Bathroom 2 | First level | |
Bathroom 2 | First level |
3, 2, 1,564ft²
MLS#: TB8422795
3, 2, 2,019ft²
MLS#: TB8431562
3, 2, 1,684ft²
MLS#: O6243107
3, 2, 1,598ft²
MLS#: TB8433404