
5521 WINDWARD WAY
New Port Richey / Flor-A-Mar Сообщество
3, 4, 2,954ft²
MLS#: TB8406366
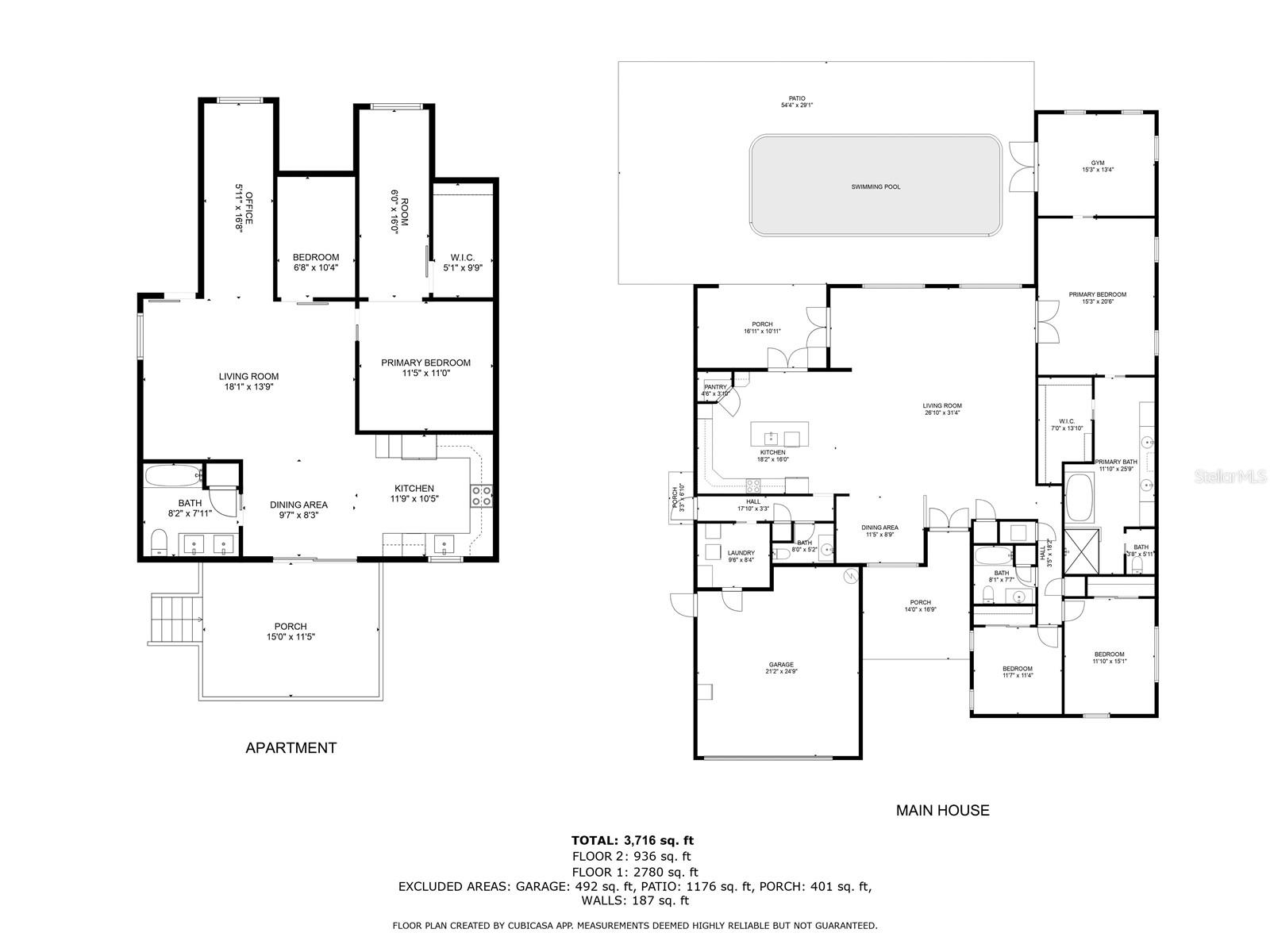
Paradise awaits at this exceptional 3-bedroom, 2.5-bath waterfront estate with a detached 2-bedroom in-law suite on a double lot in New Port Richey. Resting proudly on 0.43 acres, this 4,018 SqFt home blends luxury, resilience, and comfort—having weathered two hurricanes with no damage or flooding. Fully restored in 2017, the main home features a chef’s kitchen with vaulted beamed ceilings, granite counters, stainless steel appliances, double ovens, and a spacious pantry. The expansive great room opens to tranquil waterfront views and an entertainer’s lanai. French doors lead to the primary suite, which includes a bonus room (currently used as a gym), a spa-like bath with soaking tub, dual sinks, and custom California Closets.
Outdoors, enjoy the open-air saltwater pool, tiki hut with power and lighting, and a private dock with concrete pilings and a 16,000 lb boat lift. For the car enthusiast or RV owner, the 45’x38’ detached garage offers storage for 4–6 cars, RV access, and a second-floor in-law suite with 2 bedrooms, full kitchen, bathroom, and private balcony with water views. Additional features include a 2-car attached garage, solar water heater, 20 owned solar panels, plantation shutters, and lush landscaping. This is luxury waterfront living—designed for boaters, RVers, and anyone who craves space, style, and security.
Driving directions : N on Hwy 19 to West on Floramar Terrace, Round about 1st exit to Westshore Dr, to Right on Brigantine Ct
Rooms | Dimension | Description |
---|---|---|
Primary Bedroom | 14x21 | First level , Engineered Hardwood , Ceiling Fan(s) , En Suite Bathroom |
Kitchen | 15x29 | First level , Engineered Hardwood , Closet Pantry , Cooking Island |
Primary Bathroom | 25x10 | First level , Tile |
Bedroom 2 | 15x11 | First level , Engineered Hardwood |
Bedroom 3 | 11x11 | First level , Engineered Hardwood |
Dining Room | 9x8 | First level , Engineered Hardwood |
Great Room | 30x23 | First level , Engineered Hardwood , Ceiling Fan(s) |
New Port Richey / Flor-A-Mar Сообщество
3, 4, 2,954ft²
MLS#: TB8406366
New Port Richey / Gulf Harbors Сообщество
4, 4, 2,774ft²
MLS#: TB8387914