
5802 CHEYENNE ST
2, 2, 1,540ft²
MLS#: TB8434343
Welcome to 5909 Yorkshire Drive – a well-cared-for home in a desirable 55+ community, offering modern updates, valuable amenities, and rare financing opportunities. Enjoy peace of mind with a newer roof (2021), plus a kitchen featuring granite countertops and new appliances. A water softener system is already in place, and the washer & dryer are included for added convenience. The spacious double side-by-side garage also features a new screened door, making it both practical and versatile.
This property offers an incredible opportunity with an assumable loan of $161,000 at just 2.5% (additional funds available through a second mortgage or cash), giving qualified buyers access to exceptional financing terms.
Residents here enjoy a welcoming 55+ lifestyle with access to a community pool and clubhouse facilities. The affordable $170/Month HOA fee includes basic cable, internet, lawn maintenance, and community amenities, making day-to-day living simple and stress-free.
With thoughtful upgrades throughout and a strong list of included features, 5909 Yorkshire Drive is move-in ready and waiting for its next owner. Schedule your showing today!
Driving directions : Hwy 301 west on Geiger, Left on Wedgewood Manor Dr, Left on Cornwall Dr, Road changes to Yorkshire Dr. home is on the right
Rooms | Dimension | Description |
---|---|---|
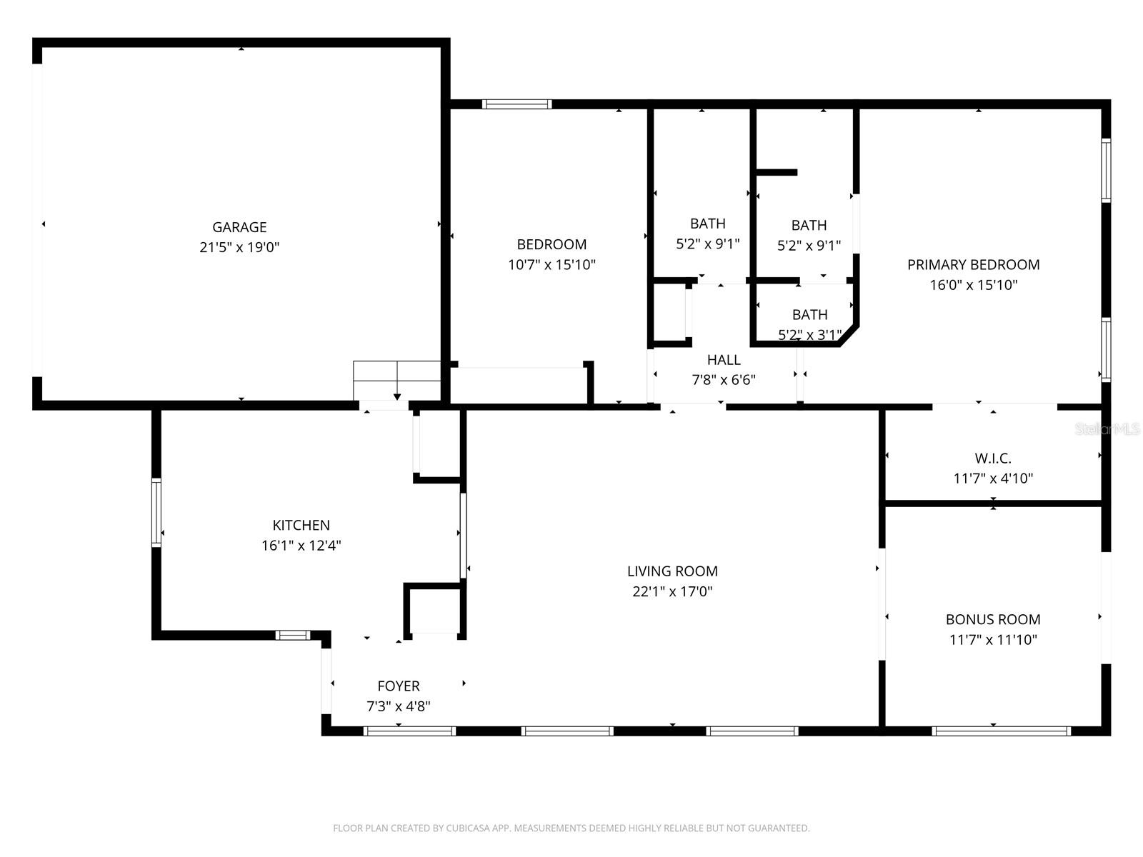
Primary Bedroom | 16x16 | First level , Ceramic Tile , Ceiling Fan(s) |
Bedroom 2 | 11x16 | First level , Ceramic Tile , Ceiling Fan(s) |
Kitchen | 12x16 | First level , Ceramic Tile , Breakfast Bar , Granite Counters , Pantry |
Great Room | 17x22 | First level |
Bonus Room | 12x12 | First level |
Foyer | 7x5 | First level |
Primary Bathroom | 5x9 | First level |
Bathroom 2 | 5x9 | First level |
2, 2, 1,540ft²
MLS#: TB8434343
3, 2, 1,932ft²
MLS#: TB8431686
2, 2, 1,434ft²
MLS#: TB8422548
3, 2, 1,386ft²
MLS#: TB8428236