
1494 85TH AVE N
3, 2, 1,664ft²
MLS#: W7878659
Welcome to this rare St. Petersburg pool home where timeless Old Florida charm meets modern upgrades and efficiency. This 3-bedroom, 2-bath residence offers nearly 1,600 sq ft of inviting living space with both family and living rooms, a screened porch, and a sparkling pool perfect for year-round enjoyment.
Step inside to appreciate the character of original plaster walls and a vintage cast-iron sink, paired with thoughtful updates like custom closets and expanded storage. Recent major improvements include a new roof (2025), complete re-plumbing (2023), new electrical panel and wiring (2022), energy-efficient HVAC, exterior unit is electric, interior furnace is gas (2021), attic spray-foam insulation, and hurricane-ready features including a Category 5 garage door, shutters, and upgraded windows. A pool pump with transferable warranty adds peace of mind.
This home runs on both electric and natural gas, dramatically lowering utility costs with the AC, water heater, and range powered by gas instead of central electric. A licensed arborist has also certified the property’s mature trees as sound, complementing the lush yard and adding to the serene setting.
Located minutes from Downtown St. Petersburg, Tampa, and award-winning Gulf beaches, this home offers unmatched convenience without sacrificing character. If you’ve been searching for a property that blends historic charm with modern efficiency and lifestyle upgrades, this is it.
Driving directions : Dr MLK Jr St N, West on 89th Ave N, Left on 11th St N, Arrive on left at corner.
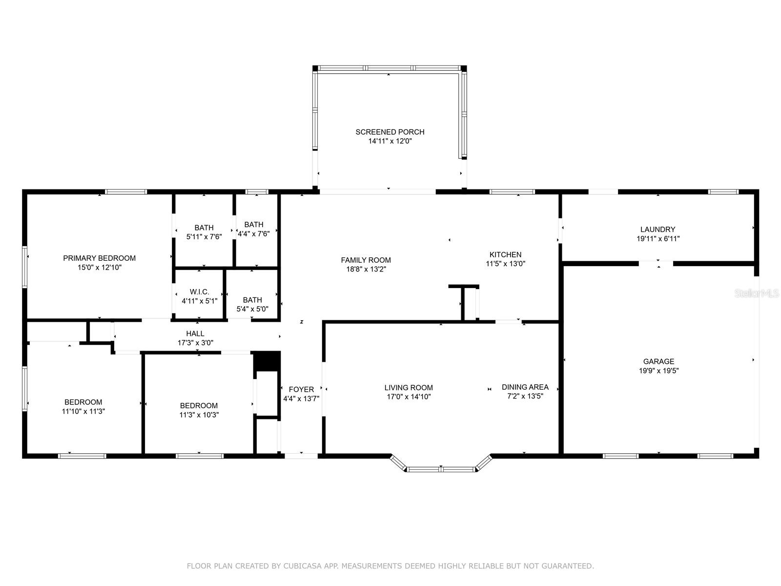
Rooms | Dimension | Description |
---|---|---|
Living Room | 17x14 | First level , Laminate |
Kitchen | 13x11 | First level , Vinyl |
Family Room | 18x13 | First level , Vinyl |
Primary Bedroom | 15x12 | First level , Other |
Primary Bathroom | 7x6 | First level , Other |
Bedroom 2 | 12x11 | First level , Other |
Bedroom 3 | 11x10 | First level , Other |
Laundry | 19x7 | First level , Vinyl |
3, 2, 1,664ft²
MLS#: W7878659
3, 2, 1,660ft²
MLS#: TB8300811
4, 2, 1,950ft²
MLS#: TB8428623
4, 3, 2,087ft²
MLS#: TB8431460