
1356 FRIEND AVE
2, 1, 1,165ft²
MLS#: TB8437945
Exclusive living, exclusive area! This lovely, well cared-for condo is located in the sought after area of the Belleview Biltmore community, tucked back along - side the Belleview Inn and Belleair Country Club. Minutes from Downtown Belleair Bluffs which boasts great restaurants, shopping and close to beach access. This two-bedroom two bath condo is a nicely updated end unit, offers Southern and Northwest exposure, which allows views of Clearwater Bay, the Gulf, Downtown Clearwater, Clearwater Beach, plus daily beautiful sunrises and sunsets. The 5th floor balcony looks at Harold Lake, which is a bird sanctuary. Both bedrooms lead to the balcony area with additional access from the living room. This unit also has its own washer and dryer, newer water heater and A/C. Both the first-floor main lobby and garage lobby have recently been professionally redone. Bayshore II has a beautiful pool, patio area and club house along with 24-hour guarded security gate. The country club offers social memberships which include fine dining, a fitness center, tennis courts, pickleball courts and more. As an owner in the community, you won’t need to wait to become a golf member of the Belleair Country Club (currently a multi-year wait). Enjoy the prestigious two 18-hole golf courses designed by Donald Ross.
Driving directions : Indian Rocks Rd. West on Belleview, Left to entrance of Belleair Country Club & Belleview Inn. Follow road to first building on right, look for Bayshore II sign. Parking located in front of the pool area.
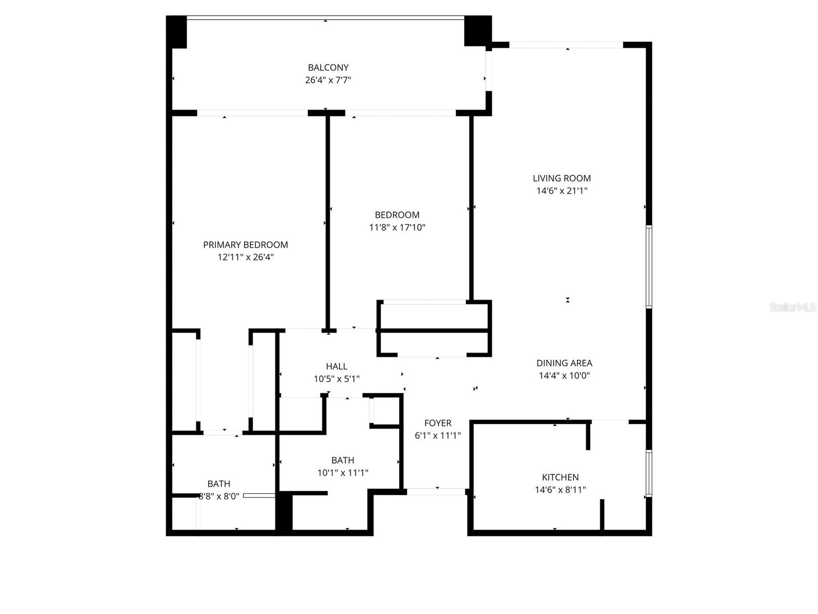
Rooms | Dimension | Description |
---|---|---|
Living Room | 21x14 | First level , Wood |
Kitchen | 8x13 | First level , Tile |
Dining Room | 9x12 | First level , Wood |
Foyer | 6x11 | First level , Wood |
Primary Bedroom | 18x12 | First level , Wood , En Suite Bathroom |
Primary Bathroom | 8x8 | First level , Tile , Tub With Shower |
Bedroom 2 | 11x14 | First level , Wood |
Bathroom 2 | 8x10 | First level , Tile , Shower No Tub |
Balcony/Porch/Lanai | 23x6 | First level , Concrete |
2, 1, 1,165ft²
MLS#: TB8437945
3, 2, 1,673ft²
MLS#: TB8335395
2, 2, 1,310ft²
MLS#: TB8310697
5, 2, 1,624ft²
MLS#: TB8435570