English / Українська / Español /

Julia Vakulenko - Broker -

TB8445761 TB8445761 TB8445761 TB8445761 TB8445761 TB8445761 TB8445761 TB8445761 TB8445761 TB8445761
Loading map ...
Loading map ...

6510 BAYOU GRANDE BLVD NE, ST PETERSBURG, 33702



Property highlights

  • MLS#: TB8445761
  • 8,843.00 lot size Sq.Ft.
  • Year built: 1969
  • Parking spaces: 2

Property Overview

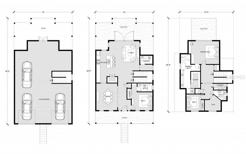
Pre-Construction. To be built. *Priced for land* Build your dream home with G.J. Gardner Homes on beautiful Bayou Grande Blvd NE in St. Petersburg. This rare opportunity offers the perfect blend of luxury, location, and lifestyle. Choose from a variety of modern, customizable home designs built with G.J. Gardner's signature craftsmanship and attention to detail. Nestled in one of St. Pete's most desirable waterfront neighborhoods, you'll enjoy peaceful surroundings, tree-lined streets, and proximity to top-rated schools, parks, and boat ramps. Just minutes from downtown St. Petersburg, restaurants, and beaches, this is the ideal setting to create your custom Florida dream home. *Knock down rebuild* Existing structure to be torn down by buyer. Pricing for the G.J. Gardner Home is subject to change based on the final site review completed by the contractor, and the county building and site requirements of the lot. The price is subject to change based on the final floor plan design and upgrades chosen by the Owner's. Images may depict landscaping and upgraded fixtures, features, facades or finishes and other items which are not included in the prices stated or not supplied by G.J. Gardner Homes. Not required to use G.J. Builder. Call Listing Agent for details.

Driving directions : From 4th Street N, head east on 62nd Avenue NE. Turn right onto Bayou Grande Blvd NE and continue to property on the right.

Property Features

Rooms Dimension Description
Kitchen 9x9 First level
Living Room 13x18 First level
Primary Bedroom 11x14 First level

Interior Features

  • Kitchen/Family Room Combo

Appliances

  • Water Softener

Heating

  • Central

Laundry features

  • Laundry Room

Air Conditioning

  • Central Air

Floor Covering

  • Ceramic Tile

Utilities

  • Electricity Available
  • Electricity Connected
  • Sewer Available
  • Sewer Connected

Exterior features

  • Rain Gutters

Construction Materials

  • Block

Road Surface Type

  • Asphalt

Property Condition

  • Pre-Construction

Roof

  • Shingle

Foundation

  • Block

Listing information courtesy of BHHS FLORIDA PROPERTIES GROUP

All listing information is deemed reliable but not guaranteed and should be independently verified through personal inspection by appropriate professionals. Listings displayed on this website may be subject to prior sale or removal from sale; availability of any listing should always be independently verified.
Listing information is provided for consumer personal, non-commercial use, solely to identify potential properties for potential purchase; all other use is strictly prohibited and may violate relevant federal and state law.
Listing data comes from My Florida Regional MLS.