English / Українська / Español /

Julia Vakulenko - Broker -

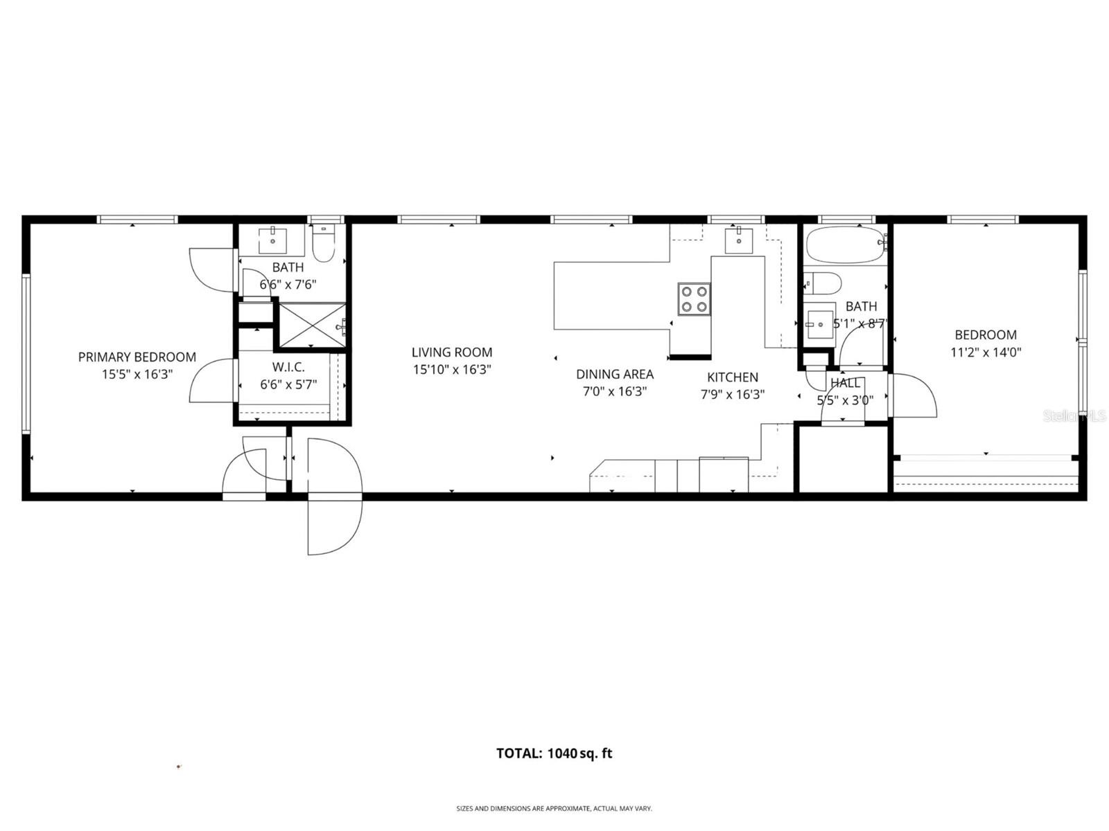
Unit 6 is close to the bay, beach & the pool. Sylvette Condos on Boca Ciega Bay & unit 6. 6000 bldg in Sylvette Condos. Unit 6 on upper left. #6 w/parking space in front of the unit. Sylvette Condos on St Pete Beach. Gulf of Mexico on right, Boca Ciega Bay on left. St Pete Beach on the Gulf of Mexico & Boca Ciega Bay on the left. Unit 6 & short walk to the beach on the Gulf of Mexico. Unit 6 & courtyard. Laundry/storage room is to the right of the table w/umbrella. Unit 6 has 2 doors. Left is primary bedroom, right is main door. View from walkway/ porch outside of front door. Laundry/storage room is downstairs & straight down the walkway. Unit has 2 doors. Left is primary bedroom, right is main door. Floor Plan 1,040 sq ft. Hurricane impact double pane windows. Keyless entry. Living/Dining areas (16'x19'). Laminate flooring. Large pass through to kitchen. Dining/Living areas. Hurricane impact double pane windows. Doorway to primary bedroom. Dining area & Kitchen. Built-in granite table w/drawers & pull out shelves. Pull out shelves below dining room granite table. Kitchen w/extra cabinets & pantry w/Pull out shelves. Kitchen Pantry w/Pull out shelves. Kitchen w/convection over, granite counters. Kitchen renovated 2023 w/new appliances cabinets & granite counters. Front primary bedroom (16'x12') w/Hurricane impact double pane windows. Split bedrooms. En-suite bathroom & walk-in closet. Primary bedroom. En-suite bath & closed door is walk-in closet. Doorway to living room. Private bedroom door to outside walkway/porch is out of pic on right. Primary bathroom w/Shower & linen closet. Granite counter. Hurricane impact double pane window. 2nd bedroom (14'x11'). Split bedrooms. Hurricane impact double pane windows. 2nd bathroom. Granite counter. Hurricane impact double pane window. Large Storage closet in 1st floor laundry room. Sunset on St Pete Beach. Corner top floor unit w/Hurricane impact double pane windows. There is additional guest parking on this side of bldg. Iconic Don Cesar Hotel on St Pete Beach. Reserved parking #80 in front of the unit. Grilling area 1 w/shuffleboard courts & pool across street from the unit. Shuffleboard courts in grilling area across from unit. Grilling area #1 across street from the unit. South pool across street from unit. South pool across street from unit. Dock is close to the unit. Great place to enjoy the sea life & fish. 1st come, 1st served boat slips. Dock w/fish cutting tables & gate for boat passengers. Enjoy sitting & watching the dolphins play. Plenty of room to relax or fish or have a picnic on the dock. Dock w/1st come, 1st serve boat slips, water, electric. Great place to relax & enjoy island life. No worries. North pool (heated) w/large sun deck. .North pool (heated) w/large sun deck. North pool (heated), courtyard & grilling area. Grilling area #2 in North pool courtyard #6 is in a quiet area of the community. Fountain & Sun deck. Grilling area #3 across from the office. Sylvette Office w/on site manager. Sunset bell at Paradise Grille on St Pete Beach. Easy walk from the unit. Serenity on the beach. Sunsets on the beach.
Loading map ...
Loading map ...

6000 2ND ST E #6, ST PETE BEACH, 33706

  • $325,000
  • Price changed 03/02/2026 from $349,900, -7.12%
  • 2 Beds, 2 Baths , 1,040 Sq.Ft
  • County: Pinellas
  • Subdivision: SYLVETTE CONDO


Property highlights

  • MLS#: TB8459182
  • 289,674.00 lot size Sq.Ft.
  • Year built: 1965
  • Floor: 2
  • Pool: Community pool
  • Listed: 12/30/2025
  • Taxes: $4,052.08
  • HOA fees (monthly): $676.25
  • Average Monthly Fees (not including CDD, if any): $676.25
  • Maintenance fee includes: Cable TV, Common Area Taxes, Pool, Escrow Reserves Fund, Fidelity Bond, Insurance, Internet, Maintenance Structure, Maintenance Grounds, Management, Recreational Facilities, Sewer, Trash and Water
  • Building Name: 6000
  • Virtual Tour

Property Overview

***$24,900 PRICE REDUCTION***Imagine waking up to the gentle sea breeze and the golden rays of the sun streaming through your windows. Welcome to your TOP-FLOOR CORNER condo, a serene 2-bedroom, 2-bathroom haven just a stone's throw from the beach. This tropical retreat boasts HURRICANE IMPACT DOUBLE PANE WINDOWS, ensuring safety and tranquility. Step into the newly RENOVATED 2023 KITCHEN, where granite countertops and extra cabinets meet cutting-edge Samsung Bespoke Smart Technology appliances, making every culinary experience a delight.

Privacy and convenience are paramount here, with KEYLESS ENTRY and SPLIT BEDROOMS strategically positioned at opposite ends of the condo. The spacious corner primary bedroom features an en-suite bath, a walk-in closet, and a private door leading to the outside walkway, perfect for a quiet moment with nature. The second bedroom, also a corner room, offers ample light and space.

Storage will never be an issue with plenty of room throughout the unit and an OUTSIDE PRIVATE STORAGE CLOSET in the ground-floor laundry room, ideal for stashing your beach gear. Your reserved parking space is conveniently located right in front of the unit.

Embrace the vibrant community lifestyle at Sylvette, where two sparkling pools, a picturesque pier with boat slips, newer seawall and three grilling areas await your leisure. Take a morning stroll to historic Pass-A-Grill or the beach just across Gulf Blvd. Enjoy the local cuisine, shopping, and beach bars with peace of mind. With easy access to downtown St. Petersburg, artsy Gulfport, Ft. Desoto Park, and major transportation hubs, your options for adventure are endless.

This isn’t just a condo; it’s a lifestyle of ease, beauty, and boundless possibilities. Welcome to your waterfront wonder, where every day is a blissful experience.

Driving directions : Gulf Blvd to 59th Ave & head east, turn left on 2nd St E, 6000 building is the first bldg on left after 60th Ave.

Property Features

Rooms Dimension Description
Living Room 16x12 First level , Laminate , Ceiling Fan(s)
Dining Room 16x7 First level , Laminate , Built-In Shelving
Kitchen 16x8 First level , Laminate , Built-In Shelving , Granite Counters , Pantry
Primary Bedroom 16x12 First level , Terrazzo , Ceiling Fan(s) , En Suite Bathroom
Primary Bathroom 6x7 First level , Terrazzo , Granite Counters , Shower No Tub , Window/Skylight in Bath
Bedroom 2 14x11 First level , Laminate , Ceiling Fan(s)
Bathroom 2 8x5 First level , Laminate , Granite Counters , Tub With Shower , Window/Skylight in Bath

Interior Features

  • Built-in Features
  • Ceiling Fans(s)
  • Eat-in Kitchen
  • Living Room/Dining Room Combo
  • Split Bedroom
  • Stone Counters
  • Thermostat
  • Walk-In Closet(s)

Appliances

  • Convection Oven
  • Electric Water Heater
  • Ice Maker
  • Microwave
  • Range
  • Refrigerator

Heating

  • Central
  • Electric

Laundry features

  • Common Area
  • Laundry Room
  • Outside

Air Conditioning

  • Central Air

Floor Covering

  • Laminate
  • Terrazzo

Utilities

  • BB/HS Internet Available
  • Cable Connected
  • Public
  • Sprinkler Recycled

Exterior features

  • Lighting
  • Outdoor Grill
  • Private Entrance
  • Storage

Pool features

  • Gunite
  • Heated
  • In Ground
  • Outside Bath Access

Parking features

  • Assigned
  • Guest
  • Reserved

Community Features

  • Association Recreation - Owned
  • Buyer Approval Required
  • Deed Restrictions
  • Irrigation-Reclaimed Water
  • Pool
  • Street Lights

Security Features

  • Fire Alarm
  • Smoke Detector(s)
  • Touchless Entry

Construction Materials

  • Block

Water access details

  • Bay/Harbor
  • Gulf/Ocean to Bay
  • Intracoastal Waterway
  • Fishing Pier
  • Seawall - Concrete

Road Surface Type

  • Asphalt
  • Paved

Roof

  • Built-Up

Foundation

  • Slab

Lot Features

  • FloodZone
  • City Limits
  • Near Public Transit
  • Paved

Listing information courtesy of RE/MAX PREFERRED

All listing information is deemed reliable but not guaranteed and should be independently verified through personal inspection by appropriate professionals. Listings displayed on this website may be subject to prior sale or removal from sale; availability of any listing should always be independently verified.
Listing information is provided for consumer personal, non-commercial use, solely to identify potential properties for potential purchase; all other use is strictly prohibited and may violate relevant federal and state law.
Listing data comes from My Florida Regional MLS.