English / Українська / Español /

Julia Vakulenko - Broker -

Port Belleair is in X flood zone and does not require flood insurance Port Belleair is in X flood zone and does not require flood insurance TB8463328 TB8463328 View of front entry from Living area Dining / Living Rooms Living room with sliding doors to Florida Room Living Room leads to Florida Room Kitchen is open to the living area with the Breakfast Bar Kitchen Kitchen Primary Suite entrance Extra large Primary Suite Primary Suite Primary En-suite Bathroom Primary En-suite Bathroom Huge shower in primary bathroom Primary bedroom walk in closet with built in's Bedroom 2 Bedroom 2 Bedroom 2 walk in closet with built in's Bedroom 2 en-suite bathroom Bedroom 2 en-suite bathroom with walk in shower Bedroom 3 with entry to the Florida Room can double as an office or den. Bedroom 3 Bathroom 3 Bathroom 3 with tub/shower combo Overview of community pool and clubhouse Community pool TB8463328 Sunset views from Florida Room
Loading map ...
Loading map ...

131 BLUFF VIEW DR #403, BELLEAIR BLUFFS, 33770



Property highlights

  • MLS#: TB8463328
  • 44,799.00 lot size Sq.Ft.
  • Year built: 1971
  • Floor: 4
  • Carport spaces: 2
  • Pool: Community pool
  • Listed: 01/12/2026
  • Taxes: $1,873.43
  • Condo maintenance: $1,045.00 Monthly
  • Average Monthly Fees (not including CDD, if any): $1,045.00
  • Maintenance fee includes: Cable TV, Pool, Escrow Reserves Fund, Insurance, Internet, Maintenance Structure, Maintenance Grounds, Management, Sewer, Trash and Water
  • Building Name: 400
  • Virtual Tour

Property Overview

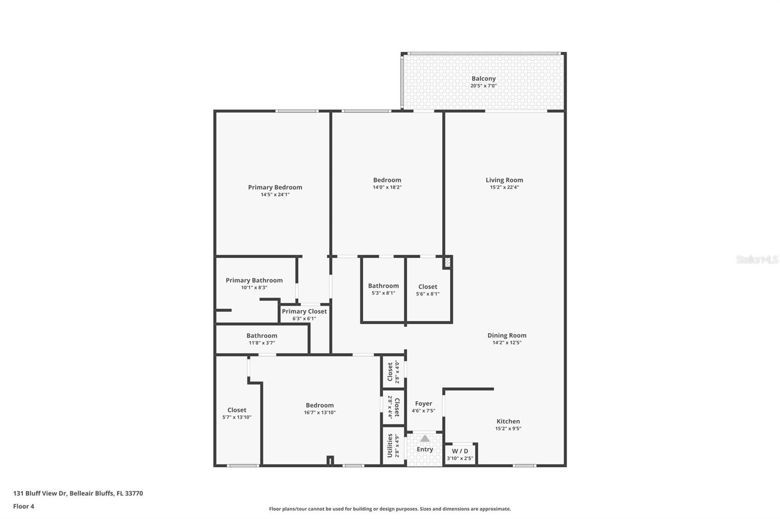
One or more photo(s) has been virtually staged. Here's your opportunity to live next to the intercoastal waterway in Flood zone X where flood insurance is not required, the milestone inspections have been completed and the reserves are fully funded. Welcome to this 55+ top level condominium offering an exceptional Florida lifestyle in the highly sought-after Port Belleair community. This rare 3 bedroom 3 bathroom home Spans 1,980 square feet and includes 2 assigned covered parking spaces as well as 2 storage units. Your condo features impact resistant windows and sliding glass door for peace of mind and exceptional peace and quiet. The AC was new in 2020 and the second ac 2024. The water heater is new in 2024. Your spacious residence features a bright, open layout ideal for both comfortable daily living and effortless entertaining. Upon entering, you are welcomed into the eat-in kitchen with ample cabinetry and generous counter space that flows seamlessly into the expansive living and dining area filled with abundant natural light. The main living space offers an open airy feel, highlighted by warm cork flooring. The living area extends to a Florida Room with windows that open for fresh air as you please, providing a versatile space perfect for relaxing, working from home, or enjoying the a beautiful sunset. This home is one of the few units that have the convenience of an in-unit washer and dryer. The layout continues into well-proportioned bedrooms, all of which feature walk-in closets and en-suite bathrooms. You will find the primary suite has enough room for even the largest bedroom set and still has room for your sitting area. Additional features include two assigned parking spaces and two additional storage units, adding everyday convenience and functionality. Offered at an exceptional value and located in Flood Zone X, this top floor residence is ideally situated in walking distance to shopping, restaurants, banking, and daily conveniences, the Belleair Causeway and on the Intracoastal Waterway. You will be close to parks, scenic walking paths and only 2 miles to dining, and the laid-back coastal charm of Indian Rocks Beach and 4 miles to Clearwater Beach. Don't miss out on this exceptional opportunity to live the Florida lifestyle - schedule your showing today!

Driving directions : West Bay Drive west to right on Bluff View Drive to right into Port Belleair to guest parking.

Property Features

Rooms Dimension Description
Living Room First level
Dining Room First level
Kitchen First level
Primary Bedroom First level
Bedroom 2 First level
Bedroom 3 First level
Florida Room First level

Interior Features

  • Ceiling Fans(s)
  • Living Room/Dining Room Combo
  • Open Floorplan
  • Solid Surface Counters
  • Walk-In Closet(s)

Appliances

  • Dishwasher
  • Dryer
  • Electric Water Heater
  • Range
  • Refrigerator
  • Washer

Heating

  • Central
  • Electric
  • Heat Pump

Laundry features

  • In Kitchen
  • Laundry Closet

Air Conditioning

  • Central Air

Floor Covering

  • Carpet
  • Ceramic Tile
  • Vinyl

Utilities

  • Cable Connected
  • Electricity Connected
  • Public
  • Sewer Connected
  • Water Connected

Exterior features

  • Storage

Parking features

  • Assigned
  • Covered
  • Ground Level
  • Basement

Pets restrictions

  • Verify with the association if and what type of pets are allowed

Community Features

  • Association Recreation - Owned
  • Clubhouse
  • Deed Restrictions
  • No Truck/RV/Motorcycle Parking
  • Pool

Association Amenities

  • Cable TV
  • Elevator(s)
  • Pool
  • Vehicle Restrictions

Construction Materials

  • Concrete

Road Surface Type

  • Asphalt

Roof

  • Built-Up

Foundation

  • Concrete Perimeter

Listing information courtesy of BHHS FLORIDA PROPERTIES GROUP

All listing information is deemed reliable but not guaranteed and should be independently verified through personal inspection by appropriate professionals. Listings displayed on this website may be subject to prior sale or removal from sale; availability of any listing should always be independently verified.
Listing information is provided for consumer personal, non-commercial use, solely to identify potential properties for potential purchase; all other use is strictly prohibited and may violate relevant federal and state law.
Listing data comes from My Florida Regional MLS.