English / Українська / Español /

Julia Vakulenko - Broker -

TB8465334 TB8465334 TB8465334 TB8465334 TB8465334 TB8465334 TB8465334 TB8465334 TB8465334 TB8465334 TB8465334 TB8465334 TB8465334 TB8465334 TB8465334 TB8465334 TB8465334 TB8465334 TB8465334 TB8465334 TB8465334 TB8465334 TB8465334
Loading map ...
Loading map ...

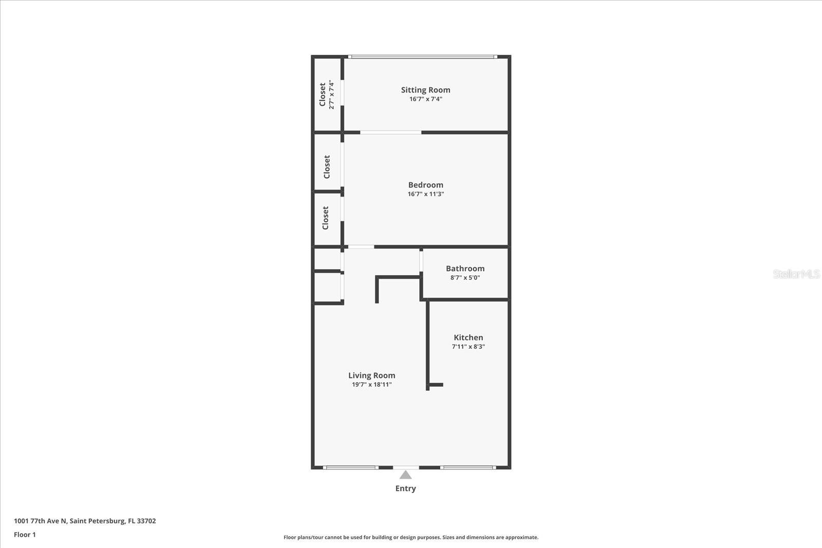
1001 77TH AVE N #307, ST PETERSBURG, 33702



Property highlights

  • MLS#: TB8465334
  • Year built: 1970
  • Floor: 3
  • Pool: Community pool
  • Listed: 01/16/2026
  • Taxes: $1,368.00
  • Condo maintenance: $636.00 Monthly
  • Average Monthly Fees (not including CDD, if any): $636.00
  • Maintenance fee includes: Cable TV, Pool, Escrow Reserves Fund, Insurance, Internet, Maintenance Structure, Maintenance Grounds, Management, Pest Control, Recreational Facilities, Sewer, Trash and Water
  • Building Name: 1001
  • Virtual Tour

Property Overview

Well-maintained one-bedroom residence in 55+ community featuring an updated kitchen with soft-close cabinetry and a built-in wine cooler perfect for everyday living and entertaining. The living area offers durable vinyl flooring, while hurricane-rated windows off the rear of the unit overlooking the pool provide added peace of mind. This condo has been lovingly cared for and it is conveniently located directly across from a shopping plaza that includes Publix as well as dining and retail options for daily essentials. Public transportation is located in front of the community and this location offers easy access to I-275 and downtown St. Petersburg.

Driving directions : Gandy Blvd to South on Dr. MLK Street N. to Winston Gateway complex on right

Property Features

Rooms Dimension Description
Living Room 19x18 First level
Kitchen 7x8 First level
Primary Bedroom 16x11 First level
Florida Room 16x7 First level

Interior Features

  • Ceiling Fans(s)
  • Living Room/Dining Room Combo

Appliances

  • Electric Water Heater
  • Microwave
  • Range
  • Refrigerator
  • Wine Refrigerator

Heating

  • Central
  • Electric

Laundry features

  • Common Area

Air Conditioning

  • Central Air

Floor Covering

  • Carpet
  • Tile
  • Vinyl

Utilities

  • BB/HS Internet Available
  • Cable Connected
  • Electricity Connected
  • Phone Available
  • Public
  • Sewer Connected
  • Water Connected

Exterior features

  • Sidewalk
  • Storage

Parking features

  • Assigned
  • Guest

Community Features

  • Association Recreation - Owned
  • Buyer Approval Required
  • Clubhouse
  • Community Mailbox
  • Pool
  • Sidewalks

Association Amenities

  • Clubhouse
  • Elevator(s)
  • Pool
  • Shuffleboard Court

Construction Materials

  • Block
  • Stucco

Road Surface Type

  • Paved

Roof

  • Other

Foundation

  • Slab

Lot Features

  • FloodZone
  • City Limits
  • Near Public Transit
  • Sidewalk
  • Paved

Listing information courtesy of RE/MAX ACTION FIRST OF FLORIDA

All listing information is deemed reliable but not guaranteed and should be independently verified through personal inspection by appropriate professionals. Listings displayed on this website may be subject to prior sale or removal from sale; availability of any listing should always be independently verified.
Listing information is provided for consumer personal, non-commercial use, solely to identify potential properties for potential purchase; all other use is strictly prohibited and may violate relevant federal and state law.
Listing data comes from My Florida Regional MLS.