English / Українська / Español /

Julia Vakulenko - Broker -

Located on the top floor, this lakeside oasis is serene and private. Your own retreat in the treetops. Light, bright, modern and ready to move right in! Updated windows, sun protection films and plantation shutters set the scene. Stunning and modern kitchen with custom cabinets, granite countertops and a gas range. So much storage space in the kitchen. Large dining room space. The primary bedroom features two walls of windows  and added privacy of no abutting neighbor to this room. Primary bathroom with step in shower. Large second bedroom. Hall bathroom adjacent to the second bedroom. Great space for a dinner party. Bonus space for extra lounge or TV area. TB8470192 Your own side by side washer and dryer. Laundry closet discreetly hidden behind the closed doors. Covered car spot #30 Steps away from this spectacular pool and hot tub. New tennis and pickleball courts. Additional parking rentals are available for additional cars, recreational vehicles, trailered boats and more. Fantastic floorplan for space and privacy. Front storm door provides even more opportunity to let the light shine in! Living room upon entering the front door. Beautiful flooring throughout the entire home - no carpet! Stainless steel appliances with a brand new refrigerator. TB8470192 TB8470192 Lovely bonus room for added living space. Stunning views inside and on the balcony of the lake. Primary bedroom Primary bathroom. Huge primary closet. Plenty of space for a bistro table or chairs. Look at this view. TB8470192 New Bocce Ball section. TB8470192 Just down the street from the condo, new tennis and pickleball courts. Shuffleboard, tennis and pickleball courts. TB8470192 TB8470192 TB8470192 TB8470192 TB8470192 TB8470192 TB8470192 Elevator to all three levels. TB8470192 Plenty of guest parking. Welcome home to Shoreview East!
Loading map ...
Loading map ...

5980 TERRACE PARK DR N #313, ST PETERSBURG, 33709



Property highlights

  • MLS#: TB8470192
  • Year built: 1978
  • Floor: 3
  • Carport spaces: 1
  • Pool: Private pool Community pool
  • Listed: 02/05/2026
  • Taxes: $3,761.70
  • HOA fees (monthly): $938.51
  • Average Monthly Fees (not including CDD, if any): $938.51
  • Maintenance fee includes: Cable TV, Pool, Escrow Reserves Fund, Gas, Insurance, Maintenance Structure, Maintenance Grounds, Management, Security, Sewer, Trash and Water
  • Building Name: SHOREVIEW EAST
  • Virtual Tour

Property Overview

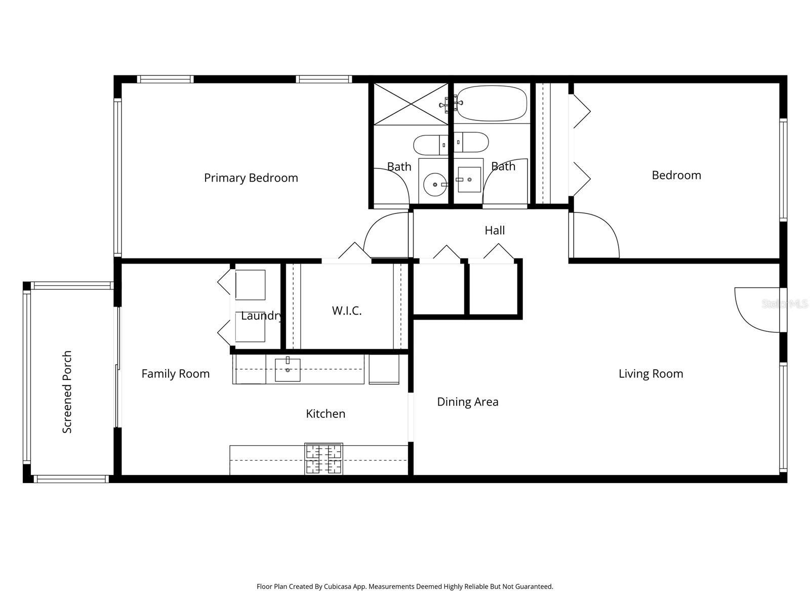
Beautifully updated and truly move-in ready, this serene waterview condo offers low-maintenance living in the highly sought-after 55+ community of Five Towns. Ideally located in the desirable Shoreview East building, the residence includes an in-unit washer and dryer, reserved covered parking space, and a designated storage area, all just steps from one of the community’s multiple pools, brand new tennis and pickleball courts, shuffleboard courts, dog park, and the newly completed parking lot where additional spaces can be rented for cars and recreational vehicles. Take the elevator to the third floor (no neighbors above you!) and immediately notice the many thoughtful updates throughout. Recent enhancements include all-new interior painting, new patio screening, plantation window treatments, updated electrical receptacles, and more—providing a fresh, modern feel and added peace of mind. Tinted hurricane-impact windows and sliders enhance both safety and serenity. A neutral color palette flows throughout the condo, accented by crown molding and modern flooring. The kitchen is a true showstopper, featuring updated cabinetry, granite countertops, stainless steel appliances (including a brand new refrigerator), and a coveted gas range—perfect for the home chef. Adjacent to the kitchen is a versatile bonus room, currently set up as a secondary living area with a sleeper loveseat, along with a convenient laundry closet housing a full-size washer and dryer. Step out onto the screened porch and enjoy tranquil lake views framed by mature trees—an ideal spot for morning coffee while watching birds in their natural habitat. The spacious primary suite easily accommodates a king-size bed and large furnishings, and offers a spacious walk-in closet and an updated ensuite bathroom with an easy step-in shower. A beautifully updated second bathroom with a tub is located in the hallway. Near the front of the unit, a generously sized second bedroom with closet is perfect for guests or a home office.

Whether you’re seeking a full-time residence or a Florida second home, this condo delivers the joy of maintenance-free living paired with an exceptional array of amenities. Five Towns offers scenic walking trails, six pools, a fitness center, shuffleboard, tennis and pickleball courts, bocce ball, billiards, card groups, clubs, educational and spiritual studies, and more. Two small pets are welcome. Conveniently located minutes from sugar-sand beaches and within 30 minutes of two international airports.

Driving directions : Take 54th Avenue to 80th St N. Right on 58th Ave, left on Terrace Park Dr N to the Shore View East Building on the left. Use elevator to access the 3rd floor and turn right once off the elevator.

Property Features

Rooms Dimension Description
Primary Bedroom 13x16 First level , Engineered Hardwood , Ceiling Fan(s)
Bedroom 2 14x12 First level , Engineered Hardwood , Ceiling Fan(s)
Living Room 14x14 First level , Engineered Hardwood , Ceiling Fan(s)
Kitchen 11x8 First level , Engineered Hardwood , Ceiling Fan(s)
Den 7x14 First level , Engineered Hardwood , Other Specify In Remarks
Dinette 10x7 First level , Engineered Hardwood

Interior Features

  • Ceiling Fans(s)
  • Crown Molding
  • Eat-in Kitchen
  • Living Room/Dining Room Combo
  • Split Bedroom
  • Stone Counters
  • Thermostat
  • Walk-In Closet(s)
  • Window Treatments

Appliances

  • Dishwasher
  • Disposal
  • Dryer
  • Exhaust Fan
  • Microwave
  • Range
  • Refrigerator
  • Washer

Heating

  • Central

Laundry features

  • Inside

Air Conditioning

  • Central Air

Floor Covering

  • Hardwood
  • Tile

Utilities

  • Cable Connected
  • Electricity Connected
  • Water Connected

Exterior features

  • Sliding Doors

Pool features

  • In Ground

Parking features

  • Assigned
  • Covered

View

  • Trees/Woods
  • Water

Patio and porch features

  • Porch
  • Rear Porch
  • Screened

Pets restrictions

  • 2 animals are allowed (dogs, cats, domestic birds or fish in an aquarium) not to exceed 35 lbs.
  • 2 pet(s) allowed
  • Small (16-35 Lbs.)

Architectural Style

  • Florida

Community Features

  • Buyer Approval Required
  • Clubhouse
  • Community Mailbox
  • Dog Park
  • Sidewalks
  • Special Community Restrictions
  • Tennis Court(s)

Association Amenities

  • Elevator(s)
  • Fitness Center
  • Handicap Modified
  • Maintenance
  • Pickleball Court(s)
  • Pool
  • Security
  • Shuffleboard Court
  • Tennis Court(s)

Security Features

  • Security Lights
  • Smoke Detector(s)

Construction Materials

  • Block

Other Structures

  • Storage

Road Surface Type

  • Asphalt

Property Condition

  • Completed

Roof

  • Built-Up

Foundation

  • Slab

Vegetation

  • Mature Landscaping
  • Trees/Landscaped

Lot Features

  • City Limits
  • Sidewalk
  • Paved

Listing information courtesy of SMITH & ASSOCIATES REAL ESTATE

All listing information is deemed reliable but not guaranteed and should be independently verified through personal inspection by appropriate professionals. Listings displayed on this website may be subject to prior sale or removal from sale; availability of any listing should always be independently verified.
Listing information is provided for consumer personal, non-commercial use, solely to identify potential properties for potential purchase; all other use is strictly prohibited and may violate relevant federal and state law.
Listing data comes from My Florida Regional MLS.