English / Українська / Español /

Julia Vakulenko - Broker -

TB8472055 TB8472055 TB8472055 TB8472055 TB8472055 TB8472055 TB8472055 TB8472055 TB8472055 TB8472055 TB8472055 TB8472055 TB8472055 TB8472055 TB8472055 TB8472055 TB8472055 TB8472055 TB8472055 TB8472055 TB8472055 TB8472055
Loading map ...
Loading map ...

31171 MIDNIGHT SUN WAY, WESLEY CHAPEL, 33545

  • $277,990
  • Price changed 04/01/2026 from $276,990, 0.36%
  • 3 Beds, 2 Baths (and 1 half-baths) , 1,463 Sq.Ft
  • County: Pasco
  • Subdivision: TOWNS AT WOODSDALE


Property highlights

  • MLS#: TB8472055
  • Year built: 2026
  • Parking spaces: 1
  • Pool: Community pool
  • Listed: 02/03/2026
  • Annual CDD fee (inc. in Taxes): $2,371.00
  • HOA fees (monthly): $60.00
  • Average Monthly Fees (not including CDD, if any): $60.00
  • Maintenance fee includes: Maintenance Grounds
  • Building Name: 0
  • Virtual Tour

Property Overview

Under Construction. The builder is offering buyers up to $25,000 towards closing costs with the use of a preferred lender and title company. Towns at Woodsdale are situated with quick access to I-75 and in a prime location of the Wesley Chapel - booming city, which was recently named by the North Tampa Bay Chambers of Commerce as the region’s most desirable location in the Tampa suburbs. Close to all things shopping, dining, entertainment, and not to mention the area’s top-rated local and charter schools, this community offers you endless opportunities.
This community features thoughtfully designed, open-concept floor plans to suit every lifestyle. Each home is built with durable concrete block construction on the first and second stories and includes Smart Home System for seamless modern living.
Pictures, photographs, colors, features, and sizes are for illustration purposes only and will vary from homes as built. Home and community information, including pricing, included features, terms, availability, and amenities, are subject to change and prior sale at any time without notice or obligation. Materials may vary based on availability.

Driving directions : Via I-75, take Exit 282 toward Overpass Rd. Turn right onto Boyette Rd, Boyette turns right and become Elam Rd. Turn left on to Majestic Woodland Blvd. Turn right onto Ancient Sage Rd. Destination will be on your right.

Property Features

Rooms Dimension Description
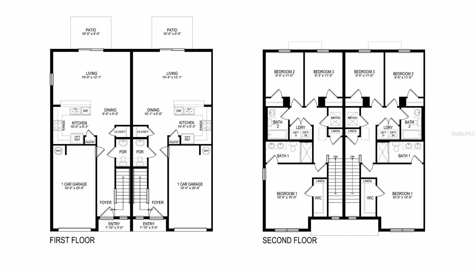
Great Room 19x12 First level , Ceramic Tile
Kitchen 10x9 First level , Ceramic Tile
Primary Bedroom 11x16 Second level , Carpet

Interior Features

  • Open Floorplan

Appliances

  • Dishwasher
  • Electric Water Heater
  • Microwave
  • Refrigerator
  • Washer

Heating

  • Central
  • Heat Pump

Laundry features

  • Laundry Room

Air Conditioning

  • Central Air

Floor Covering

  • Carpet
  • Luxury Vinyl

Utilities

  • Public

Exterior features

Parking features

  • Parking Pad

Pets restrictions

  • Per HOA Guidelines

Community Features

  • Park
  • Playground
  • Pool

Association Amenities

  • Clubhouse
  • Playground
  • Pool

Construction Materials

  • Block
  • Stucco

Road Surface Type

  • Paved

Property Condition

  • Under Construction

Roof

  • Shingle

Foundation

  • Slab

School Information


Listing information courtesy of D R HORTON REALTY OF TAMPA LLC

All listing information is deemed reliable but not guaranteed and should be independently verified through personal inspection by appropriate professionals. Listings displayed on this website may be subject to prior sale or removal from sale; availability of any listing should always be independently verified.
Listing information is provided for consumer personal, non-commercial use, solely to identify potential properties for potential purchase; all other use is strictly prohibited and may violate relevant federal and state law.
Listing data comes from My Florida Regional MLS.