English / Українська / Español /

Julia Vakulenko - Broker -

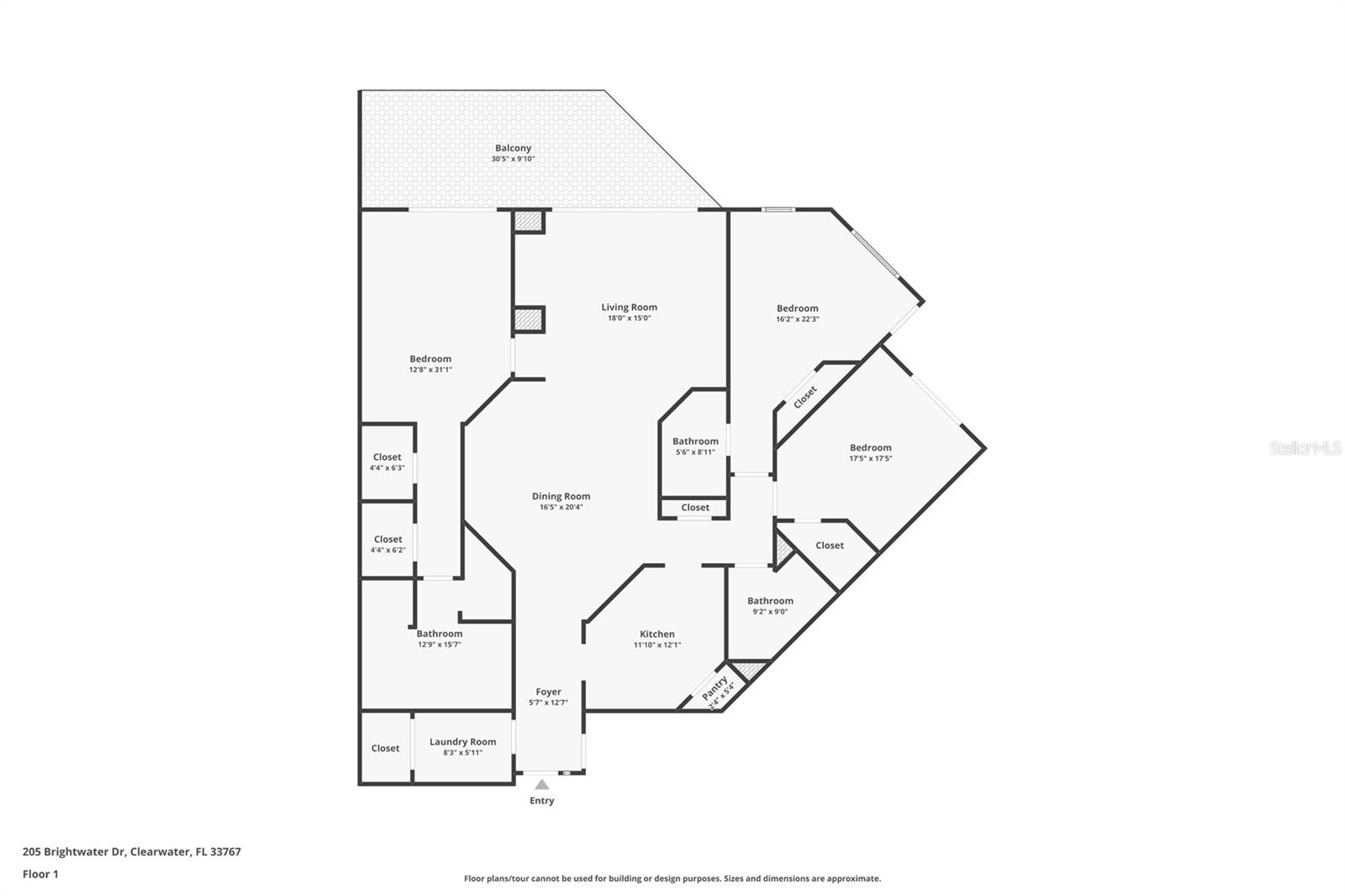
Welcome to 205 Brightwater Drive, in Clearwater Beach 205 Entry way The community has a beautiful waterside pool to enjoy Entry to Unit 202. Welcome Home! Floor Plan for the home TB8472266 The outdoor patio is karge and has great wonderful views Enjoy this beautiful view Whn you enter the home you are greated by a large kitchen opening to the dining area and Living Space The kitchen is open to the dining area Kitchen Dining area and is large and allows everyone to the see the wonderful view from the sliders in the living area Another view of the  dining and living area views As you enter the Living space you will be greated by the breathtaking views. The living area is very welcoming has sliders to your outside patio with a view Enjoy your patio area day or night The Primary bedroom is large and leads out to you patio are The Primary bath has dual sinks, soaking tub and more Primary shower Bedroom 2 with wonderful views Bedroom 3 is spacious and also has sliders outside to the Balcony Living area Bathroom 2 has a large walk in shower. Laundry room has sink and built in cabinets for additional storage TB8472266 TB8472266 TB8472266 TB8472266 TB8472266 TB8472266 TB8472266 Enjoy being outside on your patio The kitchen has granite counters, Stainless appliances and lots of storage TB8472266 TB8472266 TB8472266 TB8472266 TB8472266 TB8472266 TB8472266 TB8472266 TB8472266 TB8472266 TB8472266 TB8472266 TB8472266 TB8472266 TB8472266 TB8472266 TB8472266 TB8472266 TB8472266
Loading map ...
Loading map ...

205 BRIGHTWATER DR #202, CLEARWATER BEACH, 33767



Property highlights

  • MLS#: TB8472266
  • Year built: 2006
  • Floor: 2
  • Parking spaces: 1
  • Pool: Private pool Community pool
  • Waterfront: (300 ft)
  • Listed: 03/09/2026
  • Taxes: $17,579.00
  • Condo maintenance: $1,560.00 Monthly
  • Average Monthly Fees (not including CDD, if any): $1,560.00
  • Maintenance fee includes: Cable TV, Common Area Taxes, Pool, Escrow Reserves Fund, Maintenance Structure, Maintenance Grounds, Maintenance, Management, Pest Control, Security, Sewer, Trash and Water
  • Building Name: BRIGHTWATER POINT CONDO
  • Virtual Tour

Property Overview

Sweeping Intracoastal vistas, playful dolphins, and gentle manatees set the tone for this stunning Clearwater Beach retreat. From the moment you step inside this expansive 3-bedroom, 3-bath residence—boasting over 2,000 sq ft, soaring 11’ ceilings, two private balconies, and PREMIUM UNDER-BUILDING PARKING.you’ll feel the calm of coastal living take over. The interior has been thoughtfully updated with **brand-new luxury vinyl flooring**, fresh finishes, and a bright, modern coastal style that complements the water views at every turn. The kitchen is a true standout, offering updated cabinetry with pull-outs, quartz countertops, stainless-steel appliances, a pantry, and an island with seating—perfect for casual mornings overlooking the water. The spacious living area flows seamlessly to a generous 240+ sq ft balcony where you can unwind to the sound of lapping waves and watch boats drift by. The primary suite feels like a private sanctuary, complete with a tray ceiling, balcony access, SUNRISE VIEWS, and a beautifully reimagined bathroom featuring an updated soaking tub, walk-in shower, double vanities, and dual walk-in closets. Guests will appreciate the privacy and comfort of two additional bedrooms, each with its own updated full bath and access to a separate balcony with gorgeous water views. A dedicated laundry room with storage and a washer/dryer adds convenience, A NEW AC with Transferable warranty and Water Heater installed in 2023, will give you peace of mind, while the in-unit owner’s closet keeps beach gear tucked away. Step outside to enjoy the waterfront pool, or head up to the 5th-floor rooftop terrace for panoramic views of Clearwater Beach and the Intracoastal. With world-class dining, boutique shopping, sugar-sand beaches, and the Gulf of Mexico just minutes away, this location captures the very best of coastal living. Brightwater Point welcomes pets (2 allowed, 25 lbs each) and offers a 1-month minimum rental policy. Don't miss this rare opportunity to claim your own slice of paradise—where every day feels like a getaway.

Driving directions : Coronado Drive to Brightwater Drive, building #205 at the end.

Property Features

Rooms Dimension Description
Kitchen 12x13 First level , Luxury Vinyl
Dining Room 15x25 First level , Luxury Vinyl
Living Room 14x14 First level , Luxury Vinyl
Primary Bedroom 12x17 First level , Luxury Vinyl , En Suite Bathroom
Bedroom 2 12x14 First level , Luxury Vinyl
Bedroom 3 10x17 First level , Luxury Vinyl

Interior Features

  • Ceiling Fans(s)
  • Crown Molding
  • Solid Wood Cabinets
  • Stone Counters
  • Tray Ceiling(s)
  • Walk-In Closet(s)

Appliances

  • Dishwasher
  • Disposal
  • Dryer
  • Electric Water Heater
  • Microwave
  • Range
  • Refrigerator
  • Washer

Heating

  • Central
  • Electric

Laundry features

  • Inside

Air Conditioning

  • Central Air

Floor Covering

  • Luxury Vinyl
  • Tile

Utilities

  • Cable Available
  • Cable Connected
  • Electricity Connected
  • Public
  • Sewer Connected
  • Water Connected

Exterior features

  • Balcony
  • Sliding Doors

Pool features

  • Gunite
  • Heated
  • In Ground
  • Tile

View

  • Water

Patio and porch features

  • Patio

Architectural Style

  • Contemporary

Community Features

  • Association Recreation - Owned
  • Buyer Approval Required
  • Community Mailbox
  • Deed Restrictions
  • Gated Community - No Guard
  • Pool
  • Sidewalks
  • Street Lights

Association Amenities

  • Cable TV
  • Elevator(s)

Construction Materials

  • Concrete
  • Stucco

Water access details

  • Bay/Harbor
  • Intracoastal Waterway
  • Fishing Pier
  • Minimum Wake Zone
  • Seawall - Concrete

Road Surface Type

  • Asphalt
  • Paved

Roof

  • Other

Foundation

  • Slab
  • Stilt/On Piling

Vegetation

  • Mature Landscaping

Lot Features

  • Flood Insurance Required

Listing information courtesy of COLDWELL BANKER REALTY

All listing information is deemed reliable but not guaranteed and should be independently verified through personal inspection by appropriate professionals. Listings displayed on this website may be subject to prior sale or removal from sale; availability of any listing should always be independently verified.
Listing information is provided for consumer personal, non-commercial use, solely to identify potential properties for potential purchase; all other use is strictly prohibited and may violate relevant federal and state law.
Listing data comes from My Florida Regional MLS.