English / Українська / Español /

Julia Vakulenko - Broker -

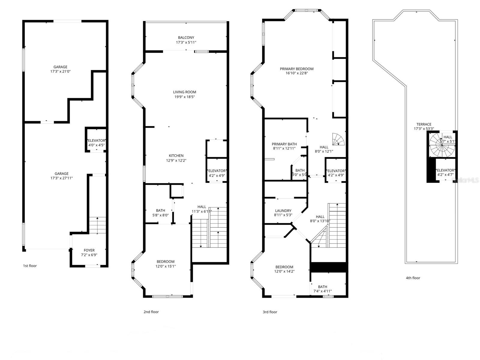
TB8473038 TB8473038 Living Room Living Room Balcony Balcony Kitchen Kitchen Kitchen Dining Private Elevator Primary Suite Primary Suite Primary Suite Primary Bathroom Primary Bathroom Guest Bedroom Guest Bathroom Guest Bathroom Guest Bathroom Laundry Roof Patio View Roof Patio Community Pool Clearwater Beach Clearwater Beach Clearwater Beach Aerial View Floor Plan
Loading map ...
Loading map ...

620 BAYWAY BLVD, CLEARWATER BEACH, 33767



Property highlights

  • MLS#: TB8473038
  • 2,888.00 lot size Sq.Ft.
  • Year built: 2004
  • Parking spaces: 2
  • Pool: Community pool
  • Waterfront: (24 ft)
  • Listed: 02/06/2026
  • Taxes: $18,113.40
  • HOA fees (monthly): $845.00
  • Average Monthly Fees (not including CDD, if any): $845.00
  • Maintenance fee includes: Pool and Maintenance Structure
  • Building Name: 620
  • Virtual Tour

Property Overview

Turnkey 7-day income producer with a deeded boat slip on world-famous Clearwater Beach. This fully furnished three-bedroom, three-bath townhome delivers sweeping Intracoastal views, conveys with all current rental reservations, and is ready to generate income on day one. Over the last year it grossed more than $50,000 while the owner also enjoyed many personal-use weeks, indicating clear upside with a fuller booking calendar. Enjoy a private garage, an elevator that services every level, and a rooftop terrace perfect for sunrise coffee and sunset cocktails. Inside, light-filled living and dining areas flow to a well-appointed kitchen, and the bedrooms are generously sized for guests and extended stays. Step outside and you are moments from the sand, dining, shopping, and nightlife. Whether you want a high-performing short-term rental or a beach retreat that helps pay its way, this property checks every box.

Driving directions : West on SR 60 over Clearwater Memorial Bridge to roundabout. South at roundabout to Coronado Dr, SE on Gulfview Blvd, W on Bayway Blvd to address. From Gulf Blvd, West over the Sand Key Bridge to Bayway Blvd to address.

Property Features

Rooms Dimension Description
Kitchen 12x12 Second level , Tile
Living Room 19x18 Second level , Tile
Primary Bedroom 16x22 Upper level , Tile

Interior Features

  • Ceiling Fans(s)
  • Elevator
  • High Ceilings
  • PrimaryBedroom Upstairs
  • Solid Wood Cabinets
  • Split Bedroom
  • Stone Counters

Appliances

  • Dishwasher
  • Dryer
  • Microwave
  • Range
  • Refrigerator
  • Washer

Heating

  • Central
  • Electric

Laundry features

  • Laundry Room
  • Upper Level

Air Conditioning

  • Central Air

Floor Covering

  • Tile
  • Wood

Utilities

  • Public

Exterior features

  • Balcony
  • Outdoor Shower
  • Private Entrance
  • Rain Gutters
  • Sliding Doors

Parking features

  • Driveway
  • Garage Door Opener
  • Tandem
  • Basement

View

  • Water

Patio and porch features

  • Patio

Pets restrictions

  • Confirm Pet Restrictions with HOA

Community Features

  • Irrigation-Reclaimed Water
  • Pool

Association Amenities

  • Maintenance
  • Pool

Construction Materials

  • Block

Water access details

  • Intracoastal Waterway
  • Assigned Boat Slip
  • Seawall - Concrete

Road Surface Type

  • Paved

Roof

  • Built-Up
  • Tile

Foundation

  • Slab

Lot Features

  • Near Golf Course
  • Near Marina
  • Near Public Transit
  • Sidewalk
  • Paved

Listing information courtesy of COASTAL PROPERTIES GROUP INTERNATIONAL

All listing information is deemed reliable but not guaranteed and should be independently verified through personal inspection by appropriate professionals. Listings displayed on this website may be subject to prior sale or removal from sale; availability of any listing should always be independently verified.
Listing information is provided for consumer personal, non-commercial use, solely to identify potential properties for potential purchase; all other use is strictly prohibited and may violate relevant federal and state law.
Listing data comes from My Florida Regional MLS.