English / Українська / Español /

Julia Vakulenko - Broker -

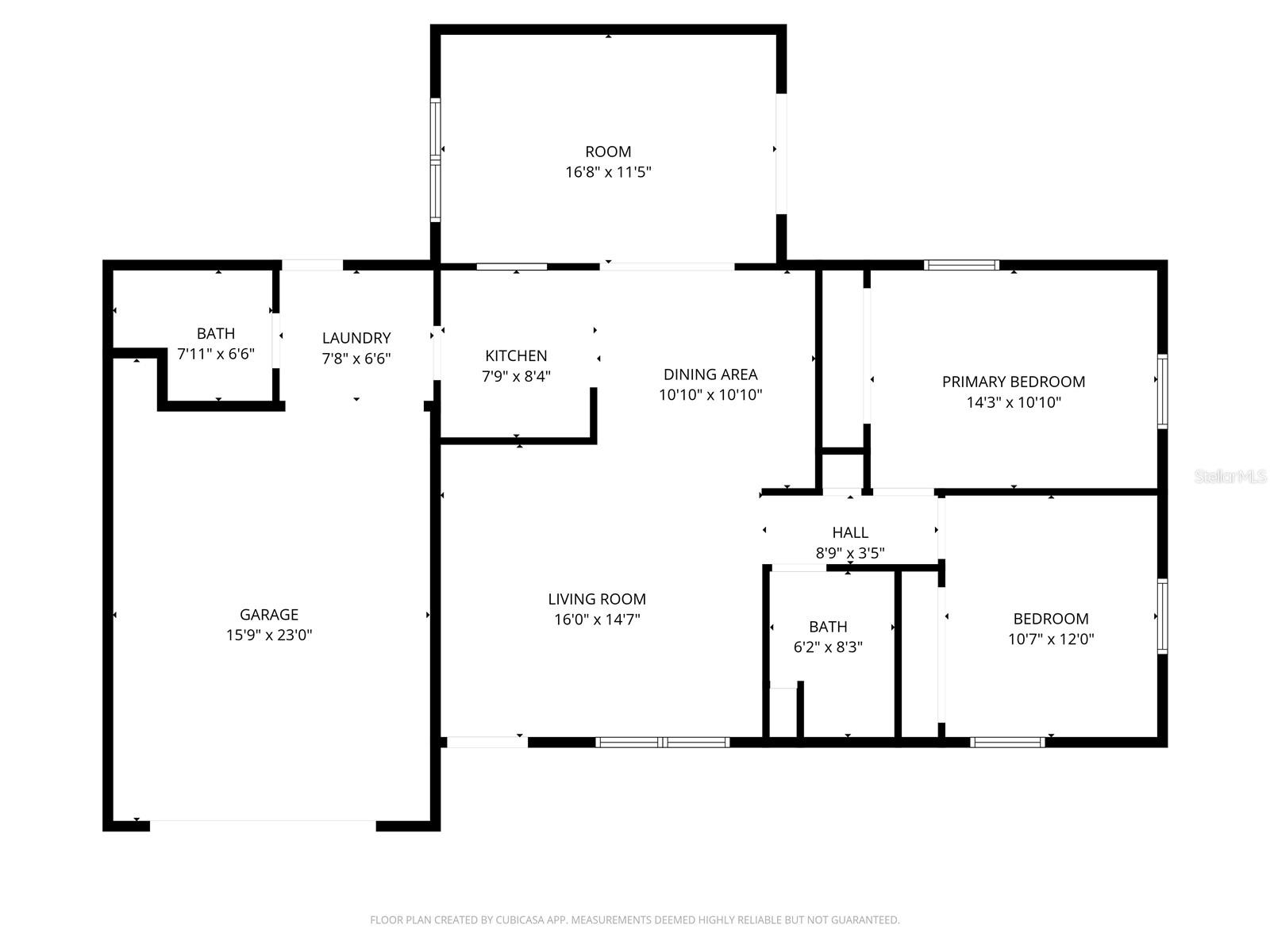
Well-loved and meticulously maintained 2-bedroom, 1.5-bath home. Floor Plan Step inside to find beautiful wood floors flowing throughout the main living areas and bedrooms. The open-concept living and dining space is filled with natural light, creating a warm and inviting atmosphere. Dining room with large opening into the Family room at the rear of the home. Dining room looking into the kitchen. Dining room, living room and kitchen with access to the 1 car garage. The kitchen has great functionality and plenty of cabinet storage. Plenty of opportunity to customize and design the kitchen of your dreams open to the family room with a large island. spacious family room with vaulted ceilings is the perfect spot to netflix and chill in an oversized sectional. Sliding glass doors opens to a private patio for indoor and outdoor entertaining. Primary Bedroom is 14' x 11' with wood floors, a built in closet and a ceiling fan. Bedroom #2 is 12' x 11' with wood floors, a built in closet and a ceiling fan. Both bedrooms share a full bathroom with a tub/shower combination. The garage includes a full-size Samsung stackable washer and dryer which convey to the buyers.  There is also access to the back patio in the garage. There is a convenient half bath in the garage. This home sits at the end of 15th street  and is situated in a quiet Zephyrhills neighborhood. Outdoor Highlights include a large lot with plenty of space to enjoy,  private patio off the family room on the left, additional patio area outside the garage on the right and a Wooden storage shed for tools and extra storage needs. View of patio and shed and access door to the 1-car garage. Recent Improvements include a replaced roof and Interior and exterior paint in 2026 for years of maintaince free living. Large patio off of the family room is hidden from the surrounding streets for privacy. Aerial view of lot looking south to 12th avenue.  NO HOA  NO CDD The current owner is also offering the adjacent property for sale as a separate listing.  A duplex featuring two 1-bedroom, 1-bath units plus a detached garage with additional income potential through storage rental. This creates a rare opportunity for a buyer or investor to live next door while managing their investment.
Loading map ...
Loading map ...

38719 12TH AVE, ZEPHYRHILLS, 33542

  • $225,000
  • Price changed 03/14/2026 from $230,000, -2.17%
  • 2 Beds, 1 Baths (and 1 half-baths) , 1,240 Sq.Ft
  • County: Pasco
  • Subdivision: CITY ZEPHYRHILLS


Property highlights

  • MLS#: TB8476180
  • 8,055.00 lot size Sq.Ft.
  • Year built: 1986
  • Parking spaces: 1

Property Overview

Reduced $10,000 ( 3/13). You will not find a better house with a NEW ROOF and this sq footage. Charming, Move-In Ready & meticulously maintained 2-bedroom, 1.5-bath home in Zephyrhills WITH NEW EXTERIOR & INTERIOR PAINT!
Welcome to comfort, space, and opportunity!
Step inside to find beautiful wood floors flowing throughout the main living areas and bedrooms. The open-concept living and dining space is filled with natural light, creating a warm and inviting atmosphere. At the rear of the home, a spacious family room with vaulted ceilings and sliding glass doors opens to a private patio; the perfect spot to relax or entertain.
The kitchen is conveniently located just off the dining area with direct access to the one-car garage, offering great functionality and the opportunity to customize and design the kitchen of your dreams.
Both bedrooms are generously sized and share a full bathroom with a tub/shower combination. The garage includes a full-size Samsung stackable washer and dryer along with a convenient half bath.
Recent Improvements include a replaced roof and Interior and exterior paint in 2026. Outdoor Highlights include a large lot with plenty of space to enjoy, private patio off the family room, Additional patio area outside the garage and a Wooden storage shed for tools and extra storage needs. A well pump is located on the property; however, the owner does not know if it is currently operational. The home is connected to and uses public water for all household needs.

The current owner is also offering the adjacent property for sale: a duplex with two 1-bedroom, 1-bath units and a detached garage, with additional income potential from storage rental. This creates a Unique Investment Opportunity for a buyer or investor to live next door while managing their investment.
Prime Location situated in a quiet Zephyrhills neighborhood with convenient access to shopping, dining, medical facilities, and everyday essentials.
This home offers the perfect combination of charm, space, and future potential — schedule your private showing today!

Driving directions : I-4 E to Plant City. Take exit 21 for FL-39A/Alexander St. Turn North on FL-39/Buchman Hwy. Keep right to continue on 7th St Turn right onto 12th Ave. Home will be on your left.

Property Features

Rooms Dimension Description
Living Room 16x15 First level , Wood
Dining Room 11x11 First level , Wood
Kitchen 8x8 First level , Tile
Family Room 17x12 First level , Wood
Primary Bedroom 14x11 First level , Wood
Bedroom 2 12x11 First level , Wood

Interior Features

  • Ceiling Fans(s)
  • Living Room/Dining Room Combo
  • Primary Bedroom Main Floor
  • Thermostat
  • Vaulted Ceiling(s)
  • Window Treatments

Appliances

  • Dryer
  • Electric Water Heater
  • Microwave
  • Range
  • Refrigerator
  • Washer

Heating

  • Central
  • Electric

Laundry features

  • In Garage

Air Conditioning

  • Central Air

Floor Covering

  • Tile
  • Wood

Utilities

  • BB/HS Internet Available
  • Cable Available
  • Electricity Connected
  • Sewer Connected
  • Water Connected

Exterior features

  • Private Mailbox
  • Private Yard
  • Rain Gutters
  • Sidewalk
  • Sliding Doors

Parking features

  • Bath In Garage
  • Driveway
  • Garage Door Opener

Patio and porch features

  • Front Porch
  • Patio

Architectural Style

  • Ranch

Security Features

  • Smoke Detector(s)

Construction Materials

  • Block
  • Vinyl Siding

Other Structures

  • Shed(s)

Road Surface Type

  • Paved

Roof

  • Shingle

Foundation

  • Slab

Vegetation

  • Mature Landscaping

Lot Features

  • Corner Lot
  • In County
  • Level
  • Sidewalk
  • Paved

Listing information courtesy of KELLER WILLIAMS SUBURBAN TAMPA

All listing information is deemed reliable but not guaranteed and should be independently verified through personal inspection by appropriate professionals. Listings displayed on this website may be subject to prior sale or removal from sale; availability of any listing should always be independently verified.
Listing information is provided for consumer personal, non-commercial use, solely to identify potential properties for potential purchase; all other use is strictly prohibited and may violate relevant federal and state law.
Listing data comes from My Florida Regional MLS.