English / Українська / Español /

Julia Vakulenko - Broker -

Front of the Home at Sunset Front of the Home During Daylight Hours New shade of Key West light blue for Lake Forest. This is NOT the current color of the townhouse New shade of Key West light green. This is not the current color of the townhouse Front of the Home During Daylight Hours Aerial Front View of Property Aerial View of Property, Red Umbrella Marks the Rear Balcony Canal View of Lake Forest Front of Home With A 1 Car Garage Front of Home With A 1 Car Garage The Breezeway to the Front Door The Breezeway to the Front Door Foyer with Title Floors View of Stairs to the Main Level Foyer with Title Floors View of the Front Door Living Room With Luxury Vinyl Floors & Balcony Access Living Room With Luxury Vinyl Floors & Balcony Access Open Concept Living Room With Luxury Vinyl Floors & Balcony Access. Easy Access to Kitchen. Skylights Provide Natural Signlight In Open Concept Living Room With Luxury Vinyl Floors & Balcony Access. Easy Access to Kitchen Dining Room With Title Floors and Granite Breakfast Bar Dining Room With Title Floors and Granite Breakfast Bar Dining Room With Title Floors and Skylights that Radiate Throughout the Main Living Area Light and Bright Main Floor. Kitchen and Dining Area Have Tile Floors. Lots of Cabinets & Granite Counters in the Kitchen. Breakfast Bar Light and Bright Main Floor. Kitchen and Dining Area Have Tile Floors. Lots of Cabinets & Granite Counters in the Kitchen. Breakfast Bar seats 3 Comfortably Light and Bright Main Floor. Kitchen and Dining Area Have Tile Floors. Lots of Cabinets & Granite Counters in the Kitchen. Breakfast Bar Light and Bright Open Concept Main Floor. Kitchen and Dining Area Have Tile Floors. Breakfast Bar Seats 3 Comfortably. Light and Bright Open Concept Main Floor. Kitchen and Dining Area Have Tile Floors. Breakfast Bar Seats 3 Comfortably. Skylights Provide Natural Sunlight. Stairs and Hallway With Luxury Vinyl Floors, Leads to the Third Floor Where Both Bedrooms and Both Bathrooms Are Located. Secondary bedroom With Luxury Vinyl Flooring Secondary bedroom With Luxury Vinyl Flooring Secondary bedroom With Luxury Vinyl Flooring Half Bath With Granite Counters Half Bath Commode Primary Bedroom Fits A King Size Bed Primary Bedroom Fits A King Size Bed, Luxury Vinyl Flooring. Curtains Covering the Balcony. Primary Bedroom Fits A King Size Bed Primary Bedroom Fits A King Size Bed. Luxury Vinyl Flooring with Access to the Primary Bath Primary Bath With Granite Counters Huge Soaker Tub in Primary Bath Huge Soaker Tub in Primary Bath To Melt Your Cares Away Main Floor Laundry With Title Floors, Right Off the Garage Main Floor Laundry With Title Floors, Right Off the Garage Main Floor Laundry With Title Floors, Right Off the Garage One Car Garage Balcony Off the Main Living Area. Great Spot For Your Morning Coffee Balcony Off the Main Living Area. Great Spot For Your Morning Coffee Rear View of the Townhouse. Read Umbrella Marks the Property Rear View of the Townhouse. Read Umbrella Marks the Property Rear View of the Townhouse. Read Umbrella Marks the Property Rear View of the Townhouse. Read Umbrella Marks the Property Rear View of the Townhouse. Read Umbrella Marks the Property Shady Yard Behind the Townhouse Aerial View Aerial View of the Canal, the Community Pool, and the Clubhouse Aerial View of the Canal Aerial View of the Canal, the Community Pool, and the Clubhouse Aerial View of the Townhouse Aerial View Townhouse Aerial View of the Canal, the Community Pool, and the Clubhouse Aerial View of the Canal, the Community Pool, and the Clubhouse Aerial View of the Canal, the Community Pool, and the Clubhouse Walkway Across the Canal View of the Canal Swimming Pool Swimming Pool Swimming Pool Swimming Pool with the Clubhouse Swimming Pool With the Clubhouse Clubhouse Floorplan
Loading map ...
Loading map ...

6420 92ND PL #1202, PINELLAS PARK, 33782



Property highlights

  • MLS#: TB8485784
  • 154,431.00 lot size Sq.Ft.
  • Year built: 1985
  • Parking spaces: 1
  • Pool: Community pool
  • Listed: 03/25/2026
  • Taxes: $841.89
  • Condo maintenance: $700.00 Monthly
  • Average Monthly Fees (not including CDD, if any): $700.00
  • Maintenance fee includes: Cable TV, Common Area Taxes, Pool, Escrow Reserves Fund, Fidelity Bond, Insurance, Internet, Maintenance Structure, Maintenance Grounds, Maintenance, Management, Recreational Facilities, Sewer, Trash and Water
  • Building Name: 12
  • Virtual Tour

Property Overview

Welcome home to this beautifully updated tri-level townhouse located in the desirable Lake Forest community. This 2-bedroom, 1.5-bath home with an attached one-car garage offers a functional layout, thoughtful upgrades, and comfortable living in a convenient location.
The first floor features a laundry room just off the garage, providing everyday ease and functionality. The second level hosts the kitchen with granite counters, 2024 appliances, & custom cabinets that overlooks the dining room and living room, creating an open and inviting space perfect for both relaxing and entertaining. Step out onto the living room balcony overlooking a peaceful green space, an ideal setting to enjoy your morning coffee or unwind at the end of the day.
This home has seen extensive updates, including new support beams, new roof, new ceilings, and skylights all completed in 2024, along with new skylight molding and fresh interior paint.
Throughout the home you’ll find luxury vinyl flooring in the dining room, living room, and both bedrooms, with tile flooring in all other areas, combining durability with modern style. The third floor offers two spacious bedrooms and 1.5 bathrooms, including a beautifully updated bath with designer tile, a makeup vanity, and a sliding barn-style Jack-and-Jill door on rollers. The A/C has been recently serviced for added peace of mind.
Additional value comes from exterior improvements already underway, as the condo association is replacing the rear balcony with composite decking (front balcony already completed) and installing new siding in coastal-inspired tones such as light blue or Key West green, enhancing both curb appeal and long-term maintenance.
Residents of Lake Forest enjoy extra guest parking and a community pool, making it easy to host and enjoy the Florida lifestyle. Conveniently located with quick access to I-275 and US-19, and close to shopping, schools, and medical facilities. Travel is a breeze with Clearwater–St. Petersburg International Airport approximately 15 minutes away and Tampa International Airport about 30 minutes away. Condo fee covers Cable TV, Community Pool, Escrow Reserves Fund, Insurance (for the exterior), Internet, Maintenance Grounds, Pool Maintenance, Sewer, Trash, Water
This home offers the perfect blend of modern updates, low-maintenance living, and a highly desirable Pinellas County location. Property website: https://hycree.hd.pics/6420-92nd-Pl-N/idx

Driving directions : From the intersection of Park Blvd and 66th St N /Hwy 693. Go north on 66th St N/Hwy 693. Go to 94th Ave. Turn right. Go to .02 miles, turn right on 92nd Pl N. Follow the curve on 92nd Pl N, townhouse on the right. Unit #1202. Please park in the visitor parking on the left that's just past the townhouse.

Property Features

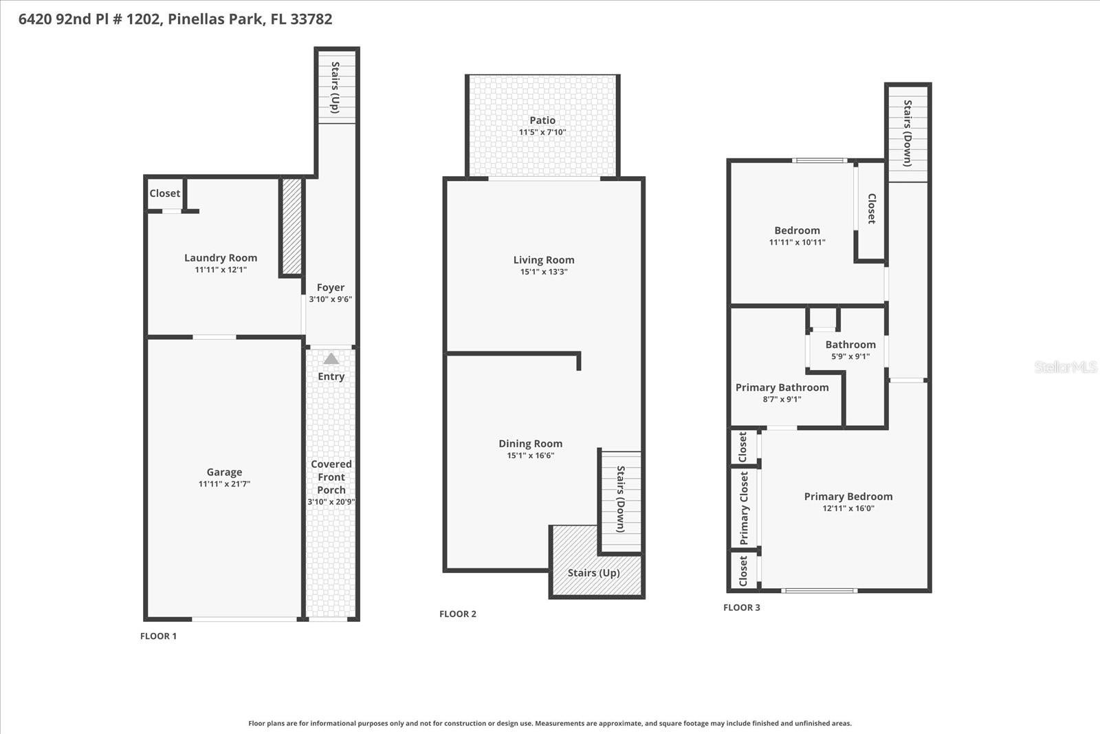
Rooms Dimension Description
Kitchen 8x9 Second level , Tile , Breakfast Bar , Stone Counters
Dining Room 15x14 Second level , Tile
Living Room 15x12 Second level , Luxury Vinyl
Laundry 11x12 First level , Tile
Primary Bedroom 13x16 Third level , Luxury Vinyl
Primary Bathroom 8x9 Third level , Tile , Granite Counters , Single Vanity , Tub With Shower
Bedroom 2 12x11 Third level , Tile , Ceiling Fan(s)
Bathroom 2 5x9 Third level , Tile , Single Vanity
Foyer 4x16 First level
Breezeway 4x24 First level
Balcony/Porch/Lanai 12x8 Second level
Bathroom 2 6x9 Third level

Interior Features

  • Ceiling Fans(s)
  • High Ceilings
  • Open Floorplan
  • PrimaryBedroom Upstairs
  • Stone Counters
  • Thermostat
  • Window Treatments

Appliances

  • Dishwasher
  • Disposal
  • Dryer
  • Electric Water Heater
  • Microwave
  • Range
  • Refrigerator
  • Washer

Heating

  • Central
  • Electric

Laundry features

  • Electric Dryer Hookup
  • Inside
  • Laundry Room
  • Washer Hookup

Air Conditioning

  • Central Air

Fireplace

  • Electric
  • Free Standing

Floor Covering

  • Luxury Vinyl
  • Tile

Utilities

  • Cable Connected
  • Electricity Connected
  • Public
  • Sewer Connected
  • Water Connected

Exterior features

  • Balcony
  • Private Entrance
  • Sidewalk

Parking features

  • Driveway
  • Garage Door Opener
  • Ground Level
  • Off Street

View

  • Trees/Woods

Patio and porch features

  • Deck

Pets restrictions

  • Please verify pet restrictions with Lake Forest HOA and property mgmt
  • 2 pet(s) allowed
  • Extra Large (101+ Lbs.)

Community Features

  • Association Recreation - Owned
  • Buyer Approval Required
  • Clubhouse
  • Community Mailbox
  • Deed Restrictions
  • Pool
  • Sidewalks
  • Special Community Restrictions

Construction Materials

  • Vinyl Siding
  • Frame

Road Surface Type

  • Asphalt
  • Paved

Roof

  • Shingle

Foundation

  • Slab

Lot Features

  • FloodZone
  • City Limits
  • Landscaped
  • Near Public Transit
  • Sidewalk
  • Paved

School Information


Listing information courtesy of LPT REALTY, LLC

All listing information is deemed reliable but not guaranteed and should be independently verified through personal inspection by appropriate professionals. Listings displayed on this website may be subject to prior sale or removal from sale; availability of any listing should always be independently verified.
Listing information is provided for consumer personal, non-commercial use, solely to identify potential properties for potential purchase; all other use is strictly prohibited and may violate relevant federal and state law.
Listing data comes from My Florida Regional MLS.