English / Українська / Español /

Julia Vakulenko - Broker -

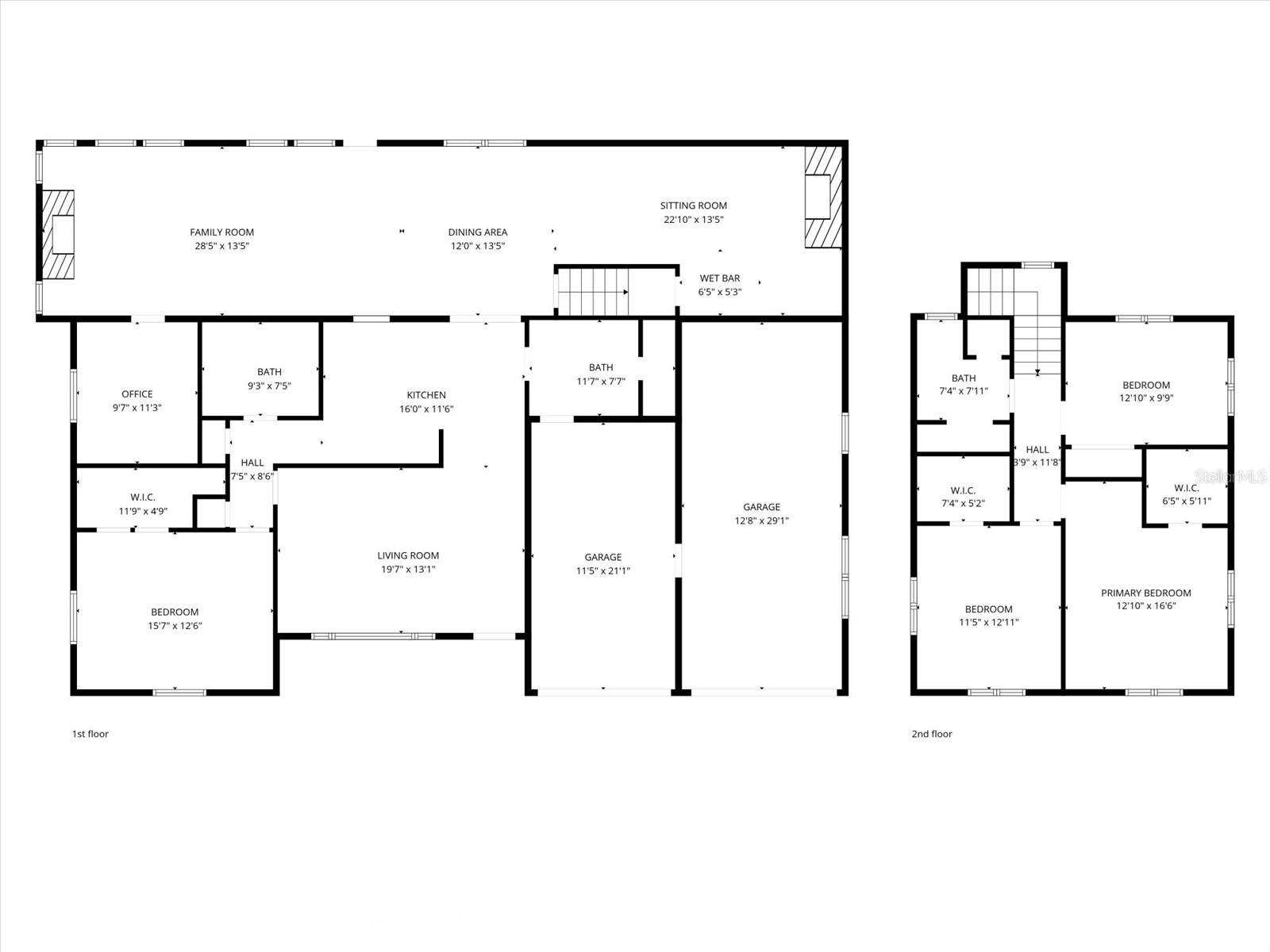
Block home, Newer Roof (2024), AC 2024, Tankless Water Heater (2025) Living Room Kitchen Kitchen with Gas Stove Family Room with one of two Fireplaces and built in grill. Family Room Custom Built in Bar next to second Fireplace Primary Bedroom with Large Walk-In Closet Bathroom One Office - can be converted into a 4th bedroom Upstairs Bedroom 1 Upstairs Bedroom 2 Upstairs Bedroom 3 Upstairs Bathroom Laundry Room with Shower TB8486060 TB8486060 TB8486060 TB8486060 TB8486060 TB8486060 TB8486060 Living Room Living Room Living Room Living Room Kitchen Kitchen Family Room Family Room Extended Family room with Fireplace and Custom Bar TB8486060 TB8486060 TB8486060 Primary Bedroom Primary Bedroom Bedroom 1 Bedroom 2 Bedroom 3 TB8486060 TB8486060 TB8486060 Room measurements are approximate.  It is buyer’s responsibility to verify all information.
Loading map ...
Loading map ...

1488 LACONIA DR E, CLEARWATER, 33764



Property highlights

  • MLS#: TB8486060
  • 8,024.00 lot size Sq.Ft.
  • Year built: 1957
  • Parking spaces: 2

Property Overview

This one-of-a-kind Clearwater home is full of character and meticulous craftsmanship. This 3-bedroom + office (easily convertible to a 4th bedroom), 2-bath block home features exquisite custom woodworking throughout, TWO gas fireplaces, an extended family room, solar tubes for additional natural light, a gas stove in the kitchen, and a custom built-in bar perfect for entertaining. The oversized second bay in the 2-car garage provides extra storage or workshop space.

The primary suite is conveniently located downstairs with a walk-in closet, while three additional bedrooms are upstairs, featuring newer luxury vinyl plank (LVP) flooring. The home also includes a first-level office and laundry room with wash sink and shower.

Major updates include: Newer roof (2024), newer AC (2024), tankless water heater (2025), and septic serviced/emptied (2024).

While the home retains its original style and vintage aesthetic, buyers will appreciate the exceptional craftsmanship, solid block construction, and incredible potential to update while preserving its unique architectural character. This centrally located property offers space, flexibility, and timeless charm.

The nearby Duke Energy Trail is great for biking or walking and this home is zoned for schools with high ratings. It is centrally located near shopping, dining, airports, Tampa bridges, and Clearwater’s world-famous beaches. Don't miss the chance to see this beautiful unique home.

Driving directions : From US-19 take the Nursery Rd/Belleair Rd exit heading WEST. Merge onto U.S. 19 Frontage Rd. Turn onto Belleair Rd heading West. Turn right onto Laconia Dr (heading North). House is 2nd home on the left.

Property Features

Rooms Dimension Description
Living Room First level
Kitchen First level
Primary Bedroom First level
Bathroom 1 First level
Office First level
Dining Room First level
Family Room First level
Bedroom 1 Second level
Bedroom 2 Second level
Bedroom 3 Second level
Bathroom 2 Second level
Laundry First level

Interior Features

  • Ceiling Fans(s)
  • Primary Bedroom Main Floor
  • Walk-In Closet(s)
  • Wet Bar

Appliances

  • Dishwasher
  • Disposal
  • Dryer
  • Indoor Grill
  • Range
  • Refrigerator
  • Tankless Water Heater
  • Washer
  • Wine Refrigerator

Heating

  • Electric

Laundry features

  • Electric Dryer Hookup
  • Inside
  • Laundry Room
  • Other
  • Washer Hookup

Air Conditioning

  • Central Air

Fireplace

  • Gas

Floor Covering

  • Ceramic Tile
  • Luxury Vinyl
  • Terrazzo

Utilities

  • BB/HS Internet Available
  • Cable Available
  • Electricity Available
  • Public
  • Sewer Available
  • Water Available

Exterior features

  • Private Mailbox

Parking features

  • Garage Door Opener
  • Workshop in Garage

Security Features

  • Security System

Construction Materials

  • Block
  • Wood Siding

Road Surface Type

  • Asphalt

Roof

  • Shingle

Foundation

  • Slab

School Information


Listing information courtesy of COMPASS FLORIDA LLC

All listing information is deemed reliable but not guaranteed and should be independently verified through personal inspection by appropriate professionals. Listings displayed on this website may be subject to prior sale or removal from sale; availability of any listing should always be independently verified.
Listing information is provided for consumer personal, non-commercial use, solely to identify potential properties for potential purchase; all other use is strictly prohibited and may violate relevant federal and state law.
Listing data comes from My Florida Regional MLS.