English / Українська / Español /

Julia Vakulenko - Broker -

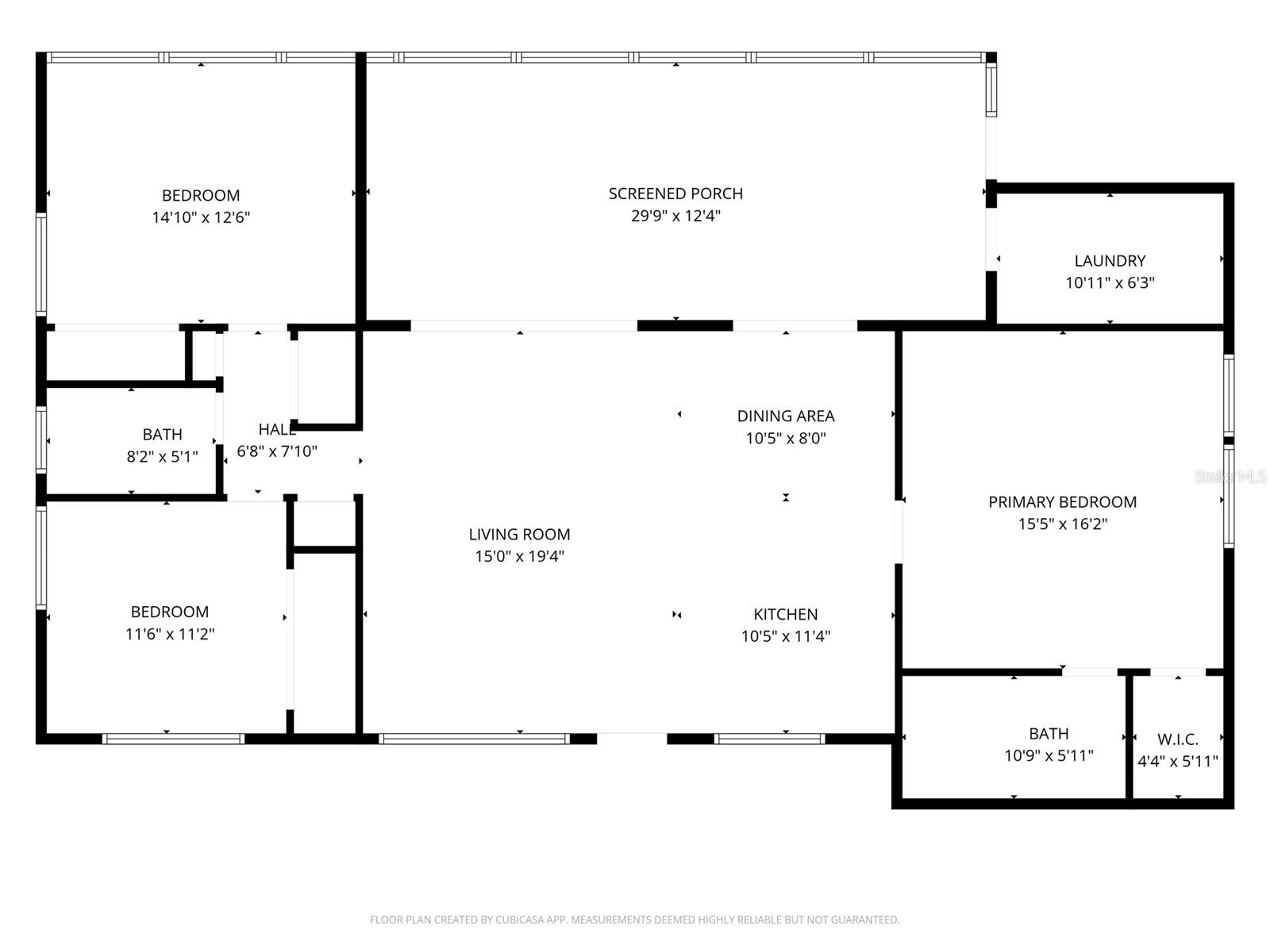
Updated Tarpon Springs home on a .22 Acre lot featuring coastal charm, modern improvements, and a spacious corner lot near boating, fishing, and Gulf Coast recreation Overhead view of this Tarpon Springs home just minutes from the Gulf and coastal attractions Sliding glass doors open to screened porch Custom accent wall adds modern character to the living space Bright living area with luxury vinyl plank flooring Spacious living room with high ceilings and open layout Kitchen featuring breakfast bar seating Modern kitchen with stainless steel appliances Modern finishes and functional kitchen layout Stylish kitchen with new cabinetry and quartz counters Open kitchen overlooking main living area Dining area conveniently located just off the kitchen Enjoy Florida living year round from this large screened porch Oversized lanai ideal for morning coffee or evening relaxation Quiet primary bedroom positioned away from guest rooms Primary bedroom with easy access to ensuite bathroom and large closet Designer walk in tiled shower with handheld shower wand Double vanity with modern fixtures Bright secondary bedroom with natural light Blue herringbone tile shower and tub combo Comfortable third bedroom with great natural light Finished laundry room with tile backsplash Minutes to the Gulf and local waterfront dining Golden hour view of this charming coastal home Extended driveway provides plenty of parking for multiple vehicles Great yard for pets, gardening, or entertaining Corner lot offering extra outdoor space Large over .22 acre corner lot Large yard with endless possibilities Illustrative floor plan provided for reference only. Square footage and room dimensions are approximate and have not been professionally measured. All measurements should be independently verified by the buyer.
Loading map ...
Loading map ...

695 SUNSET DR, TARPON SPRINGS, 34689

  • $339,000
  • Price changed 04/07/2026 from $360,000, -5.83%
  • 3 Beds, 2 Baths , 1,560 Sq.Ft
  • County: Pinellas
  • Subdivision: FERGUSONS ESTATES


Property highlights

  • MLS#: TB8486752
  • 9,810.00 lot size Sq.Ft.
  • Year built: 1961
  • Carport spaces: 1

Property Overview

Fully remodeled 3-bedroom, 2-bath coastal home on a .22-acre corner lot in Tarpon Springs, located just minutes to the Gulf, boating, dining, and the historic Tarpon Springs Sponge Docks.

Inside, the home feels bright and inviting with high ceilings, fresh neutral paint, new luxury vinyl plank flooring, and an open layout designed for comfortable living. The living room features a custom accent wall and large sliding glass doors that open to an oversized screened porch, creating a seamless indoor-outdoor space perfect for relaxing or entertaining.

The updated kitchen is both stylish and functional with new cabinetry, quartz countertops, stainless steel appliances, and a convenient breakfast bar.

The primary suite is privately positioned and includes a newly added ensuite bathroom featuring a large custom tiled shower with handheld shower wand, gold fixtures, hexagon floor tile, and a modern double vanity with brand-new cabinetry and fixtures.

Two additional bedrooms offer flexibility for family, guests, or a home office. The hallway bathroom has also been beautifully updated with a tub/shower combination featuring striking blue tile in a herringbone pattern, along with a new white vanity and black fixtures and accents.

Additional improvements include a finished laundry room with a tile backsplash, adding both style and practicality.

Outside, the large yard on the .22-acre corner lot offers plenty of space for outdoor enjoyment, gardening, entertaining, and giving pets room to run and play.

With its extensive updates and prime location near shopping, dining, and the waterfront, this move-in ready home offers the perfect opportunity to enjoy the coastal Florida lifestyle in Tarpon Springs. Whether relocating to Florida, searching for a seasonal getaway, or looking for an investment property, this home puts you minutes to the Gulf, boating, waterfront restaurants, and everything that makes Tarpon Springs such a special place to live. This move-in ready home offers an excellent opportunity for a primary residence, seasonal retreat, or investment property.

Driving directions : From US 19 N, Tarpon Ave west, right on N Spring Blvd, left on Riverside Dr, right on Sunset Ln to property.

Property Features

Rooms Dimension Description
Primary Bedroom 15.5x16.2 First level , Luxury Vinyl
Living Room 15x19 First level , Luxury Vinyl
Kitchen 10.5x11.4 First level , Luxury Vinyl , Granite Counters
Dining Room 10.5x8 First level , Luxury Vinyl
Bedroom 2 15x12.5 First level , Luxury Vinyl
Bedroom 3 11.5x11 First level , Luxury Vinyl

Interior Features

  • Ceiling Fans(s)
  • Eat-in Kitchen
  • Other
  • Primary Bedroom Main Floor
  • Stone Counters
  • Thermostat
  • Vaulted Ceiling(s)

Appliances

  • Dishwasher
  • Disposal
  • Range
  • Refrigerator

Heating

  • Central

Laundry features

  • Laundry Room

Air Conditioning

  • Central Air

Floor Covering

  • Luxury Vinyl

Utilities

  • Electricity Connected
  • Sewer Connected
  • Water Connected

Exterior features

  • Other

Parking features

  • Covered
  • Driveway

Patio and porch features

  • Covered
  • Enclosed
  • Front Porch
  • Rear Porch

Construction Materials

  • Block

Road Surface Type

  • Paved

Roof

  • Shingle

Foundation

  • Slab

Lot Features

  • Corner Lot
  • Paved

School Information


Listing information courtesy of FLORIDA PM PROS LLC

All listing information is deemed reliable but not guaranteed and should be independently verified through personal inspection by appropriate professionals. Listings displayed on this website may be subject to prior sale or removal from sale; availability of any listing should always be independently verified.
Listing information is provided for consumer personal, non-commercial use, solely to identify potential properties for potential purchase; all other use is strictly prohibited and may violate relevant federal and state law.
Listing data comes from My Florida Regional MLS.