English / Українська / Español /

Julia Vakulenko - Broker -

Front Exterior Rendering TB8490955 TB8490955 TB8490955 TB8490955 TB8490955 TB8490955 TB8490955 Level One Level Two
Loading map ...
Loading map ...

2661 CYPRUS DR, PALM HARBOR, 34684



Property highlights

  • MLS#: TB8490955
  • 125,727.00 lot size Sq.Ft.
  • Year built: 2026
  • Parking spaces: 3

Property Overview

Pre-Construction. To be built. Set on nearly 3 acres with over 300 feet of Lake Tarpon shoreline, this is a rare opportunity to bring a custom-designed waterfront estate to life.

Tucked beyond private gates at the end of a quiet cul-de-sac, the privacy and lakefront setting are truly exceptional.


The proposed home reflects a timeless coastal aesthetic, with a crisp white brick façade complemented by dark roofing and warm wood accents, creating a refined and inviting home. Front-facing gables add dimension and architectural character, while the arched entryway introduces a subtle softness that elevates the overall design.


Windows invite natural light and reinforce the connection between the home and its waterfront setting. A side-entry garage preserves the integrity of the front elevation, while landscaping enhances the home.


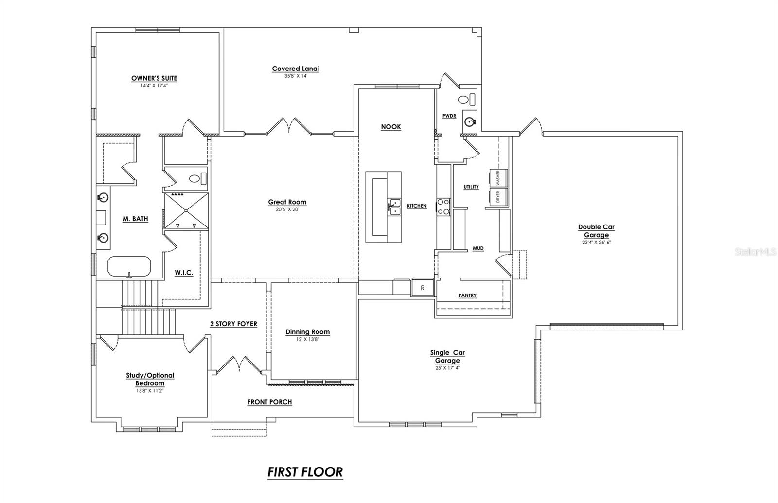
Inside, the first floor centers around a spacious great room that opens seamlessly to the outdoor living areas, creating a natural extension toward the water. A private owner’s suite offers a quiet retreat, while a dedicated office or optional bedroom adds flexibility. The expansive kitchen and main living areas are designed for effortless everyday living and elevated entertaining.

Upstairs, additional bedrooms are paired with a spacious game room and flexible living space, ideal for guests or multigenerational living.


The setting itself is what truly sets this property apart. From the moment you enter, the homesite opens to panoramic water views, mature trees, and the calm, private ambiance of Lake Tarpon. A 6,000 lb boat lift, open dock with electric and water, and direct access to one of the area’s most sought-after freshwater lakes allow for year-round boating, fishing, and recreation directly from your backyard.


Opportunities that combine land, location, and a clear path to build are increasingly rare. This is not just a homesite, it’s a vision ready to be brought to life.

Full home plans are available, while still allowing buyers the opportunity to personalize their selections. Exact build specifications to be determined between Buyer and Developer.

All site visits must be scheduled in advance. Please do not enter the property without prior authorization.

Driving directions : From US 19, head east on Cyprus Drive to property.

Property Features

Rooms Dimension Description
Kitchen 24x14 First level
Living Room 20.6x20 First level
Primary Bedroom 14.4x17.4 First level
Bedroom 2 5.8x11.2 First level
Dining Room 12x13.8 First level
Bathroom 3 13.2x14.1 Second level
Bathroom 4 13x12.6 Second level
Bedroom 5 12x14.2 Second level

Interior Features

  • Built-in Features
  • Open Floorplan
  • Other
  • Primary Bedroom Main Floor
  • Thermostat

Appliances

  • Other

Heating

  • Central
  • Electric

Laundry features

  • Inside
  • Laundry Room

Air Conditioning

  • Central Air

Fireplace

  • Electric

Floor Covering

  • Other

Utilities

  • BB/HS Internet Available
  • Cable Available
  • Electricity Available
  • Fire Hydrant
  • Public
  • Sewer Available
  • Water Connected

Exterior features

  • Awning(s)
  • Private Entrance
  • Private Yard

Construction Materials

  • Block

Road Surface Type

  • Paved

Property Condition

  • Pre-Construction

Roof

  • Shingle

Foundation

  • Slab

Listing information courtesy of SOUTHERN LIFE REALTY

All listing information is deemed reliable but not guaranteed and should be independently verified through personal inspection by appropriate professionals. Listings displayed on this website may be subject to prior sale or removal from sale; availability of any listing should always be independently verified.
Listing information is provided for consumer personal, non-commercial use, solely to identify potential properties for potential purchase; all other use is strictly prohibited and may violate relevant federal and state law.
Listing data comes from My Florida Regional MLS.