English / Українська / Español /

Julia Vakulenko - Broker -

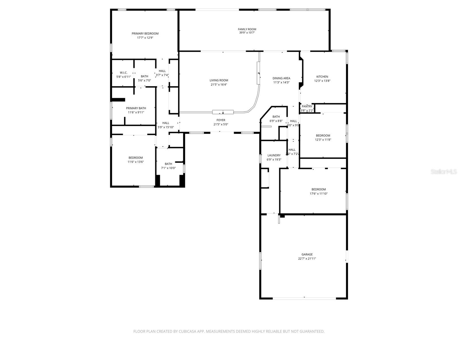
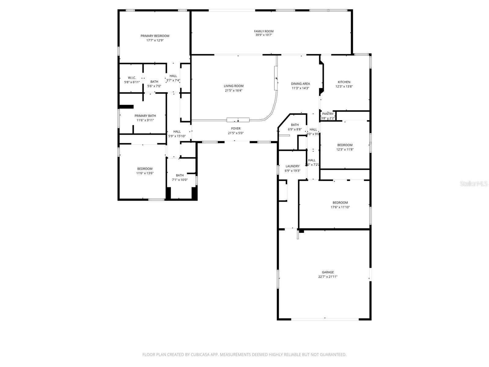
View TB8493476 Entry Living Room Living Room Living Room Family Room Kitchen Kitchen Primary Bedroom Primary Bathroom Primary Bathroom Primary Bathroom Guest Bedroom Guest Bathroom Guest Bedroom Pool Yard Pool Dock View Aerial View Aerial View Belleair Beach Floor Plan
Loading map ...
Loading map ...

3103 WEDGEWOOD DR, BELLEAIR BEACH, 33786

  • $1,600,000
  • Price changed 05/04/2026 from $1,650,000, -3.03%
  • 4 Beds, 3 Baths , 3,083 Sq.Ft
  • County: Pinellas
  • Subdivision: BELLE ISLE


Property highlights

  • MLS#: TB8493476
  • 14,723.00 lot size Sq.Ft.
  • Year built: 1974
  • Parking spaces: 2
  • Pool: Private pool
  • Waterfront: (51 ft)

Property Overview

Sometimes the most meaningful homes begin as an opportunity. Set among multi-million-dollar waterfront estates in Belleair Beach, this property offers a rare chance to reimagine and rebuild something truly special. The home currently reflects its need for renovation, but its location, privacy, and sweeping water views toward the Clearwater Causeway are irreplaceable assets. Step inside, and you can begin to picture what’s next. Natural light filling the space. Clean lines replacing what once was. A layout brought to life with warmth, intention, and modern design. This is more than a renovation, it is a transformation waiting to happen. The existing footprint features an open layout and a split-bedroom design that lends itself beautifully to a thoughtful redesign. Outside, the property includes a waterfront dock and pool, both likely needing renovation, but they provide a solid foundation for those looking to fully reimagine the outdoor living experience. For those with vision, this is where your next chapter begins: an opportunity to design, refine, and ultimately own a custom waterfront home in one of Belleair Beach’s most sought-after settings.

Driving directions : Gulf Blvd. to West on Belle Isle Ave. North on Wedgewood Dr.

Property Features

Rooms Dimension Description
Kitchen 13x12 First level , Tile
Living Room 22x17 First level , Concrete
Primary Bedroom 17x13 First level , Carpet

Interior Features

  • Ceiling Fans(s)
  • Central Vaccum
  • High Ceilings
  • Open Floorplan
  • Primary Bedroom Main Floor
  • Split Bedroom
  • Walk-In Closet(s)

Appliances

  • Dishwasher
  • Microwave
  • Range

Heating

  • Central
  • Electric

Laundry features

  • Inside
  • Laundry Room

Air Conditioning

  • Central Air

Floor Covering

  • Carpet
  • Tile
  • Vinyl

Utilities

  • Public

Exterior features

  • Rain Gutters
  • Sliding Doors

Pool features

  • In Ground

Parking features

  • Circular Driveway
  • Driveway
  • Garage Door Opener
  • Oversized

View

  • Pool
  • Water

Patio and porch features

  • Patio

Community Features

  • Park
  • Playground
  • Tennis Court(s)

Construction Materials

  • Block
  • Concrete
  • Stucco

Water access details

  • Intracoastal Waterway
  • Seawall - Concrete

Road Surface Type

  • Paved

Roof

  • Concrete
  • Tile

Foundation

  • Slab

Lot Features

  • Corner Lot
  • Cul-De-Sac
  • Near Golf Course
  • Near Marina
  • Near Public Transit
  • Paved

Listing information courtesy of COASTAL PROPERTIES GROUP INTERNATIONAL

All listing information is deemed reliable but not guaranteed and should be independently verified through personal inspection by appropriate professionals. Listings displayed on this website may be subject to prior sale or removal from sale; availability of any listing should always be independently verified.
Listing information is provided for consumer personal, non-commercial use, solely to identify potential properties for potential purchase; all other use is strictly prohibited and may violate relevant federal and state law.
Listing data comes from My Florida Regional MLS.