English / Українська / Español /

Julia Vakulenko - Broker -

TB8499338 TB8499338 TB8499338 TB8499338 TB8499338 TB8499338 TB8499338 TB8499338 TB8499338 TB8499338 TB8499338 TB8499338 TB8499338 TB8499338 TB8499338 TB8499338 TB8499338 TB8499338 TB8499338 TB8499338 TB8499338 TB8499338
Loading map ...
Loading map ...

437 WARM HERON PL, RUSKIN, 33570



Property highlights

  • MLS#: TB8499338
  • Year built: 2026
  • Parking spaces: 1
  • Listed: 04/18/2026
  • HOA fees (monthly): $162.00
  • Average Monthly Fees (not including CDD, if any): $162.00
  • Maintenance fee includes: Other
  • Building Name: 0
  • Virtual Tour

Property Overview

Under Construction. The builder is offering buyers up to $25,000 towards closing costs with the use of a preferred lender and title company.
Ruskin Reserve is NO CDD community that offers a mix of single-family homes and townhomes designed for modern living. Conveniently located near US-41 and I-75, the community provides easy access to Tampa, Apollo Beach, and Sun City Center. Enjoy nearby outdoor attractions like EG Simmons Regional Park and Little Manatee River State Park, along with a variety of shopping, dining, and entertainment options.
Homes in Ruskin Reserve feature Smart Home System, durable concrete block construction, and energy-efficient designs, making this community ideal for families and professionals alike.
Pictures, photographs, colors, features, and sizes are for illustration purposes only and will vary from homes as built. Home and community information, including pricing, included features, terms, availability, and amenities, are subject to change and prior sale at any time without notice or obligation. Materials may vary based on availability.

Driving directions : From I-75, take exit 240B to merge onto FL-674 W/ College Ave toward Ruskin. Turn Right on to 12th Street SE and left on 3rd Ave, Right on Royal Spoonbill Dr.

Property Features

Rooms Dimension Description
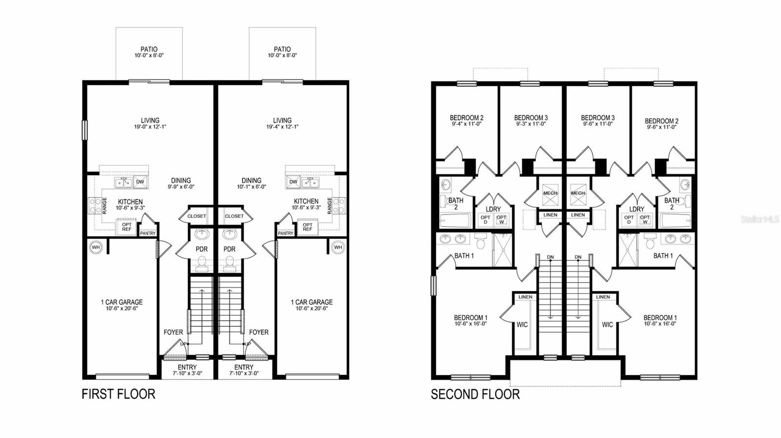
Great Room 19x12 First level , Ceramic Tile
Kitchen 10x9 First level , Ceramic Tile
Primary Bedroom 11x16 Second level , Carpet

Interior Features

  • Open Floorplan

Appliances

  • Dishwasher
  • Dryer
  • Microwave
  • Range
  • Refrigerator
  • Washer

Heating

  • Central
  • Heat Pump

Laundry features

  • Laundry Room

Air Conditioning

  • Central Air

Floor Covering

  • Carpet
  • Ceramic Tile

Utilities

  • Public
  • Underground Utilities

Exterior features

Parking features

  • Parking Pad

Pets restrictions

  • Per HOA Guidelines

Community Features

  • Park

Construction Materials

  • Block
  • Stucco

Road Surface Type

  • Paved

Property Condition

  • Under Construction

Roof

  • Shingle

Foundation

  • Slab

School Information


Listing information courtesy of D R HORTON REALTY OF TAMPA LLC

All listing information is deemed reliable but not guaranteed and should be independently verified through personal inspection by appropriate professionals. Listings displayed on this website may be subject to prior sale or removal from sale; availability of any listing should always be independently verified.
Listing information is provided for consumer personal, non-commercial use, solely to identify potential properties for potential purchase; all other use is strictly prohibited and may violate relevant federal and state law.
Listing data comes from My Florida Regional MLS.